Villa a schiera in vendita

Seveso, Via Manzoni
€ 398.000
4 locali 4 locali
150 Mq 150 Mq
2 bagni 2 bagni

Villa a schiera in vendita

Seveso, Via Manzoni

Descrizione annuncio

RESIDENZA MANZONI – Nuove ville in Classe Energetica A3 a partire da € 398.000 – Pronta consegna

A Seveso, in Via Manzoni, all’interno di un nuovo e curato contesto residenziale, nasce Residenza Manzoni, un progetto composto da sole cinque unità abitative progettate per offrire privacy, comfort e un’elevata efficienza energetica.

Attualmente sono disponibili le ultime tre soluzioni, un’opportunità interessante per chi desidera acquistare una casa nuova in un contesto moderno e riservato.

La posizione è particolarmente strategica, a pochi passi dalla stazione e dai principali servizi, ma allo stesso tempo inserita in un contesto tranquillo e ordinato, ideale per chi desidera vivere in un ambiente moderno senza rinunciare alla comodità della vita quotidiana.

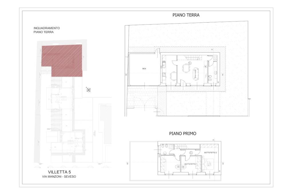
Le abitazioni sono tutte dotate di accesso indipendente e si sviluppano su due livelli, con spazi ampi e ben distribuiti che comprendono soluzioni da tre o quattro locali con doppi servizi, perfette per famiglie o per chi è alla ricerca di una casa contemporanea e funzionale.

Al piano terra si sviluppa la zona giorno, pensata per garantire comfort e praticità negli ambienti di tutti i giorni.

Qui troviamo un luminoso soggiorno, una cucina abitabile separata e un bagno finestrato.

Completa il piano il box doppio direttamente collegato all’abitazione, una soluzione molto apprezzata per comodità e gestione degli spazi.

Il primo piano è dedicato alla zona notte, dove trovano spazio tre camere da letto, un secondo bagno finestrato e un ampio terrazzo.

Questo spazio esterno rappresenta un vero valore aggiunto della casa, perfetto per essere vissuto durante la bella stagione come area relax o per momenti conviviali all’aperto.

Il progetto è stato sviluppato con particolare attenzione al comfort abitativo e al risparmio energetico.

Le abitazioni sono infatti realizzate con impianti di ultima generazione, tra cui riscaldamento a pannelli radianti a pavimento alimentato da pompa di calore elettrica, impianto fotovoltaico e sistema di ventilazione meccanica controllata canalizzata che garantisce un costante ricambio dell’aria e un clima interno sempre piacevole durante tutto l’anno.

La costruzione è inoltre completamente priva di fornitura gas, in linea con le più moderne soluzioni abitative orientate all’efficienza energetica e alla sostenibilità.

Le case sono completate da serramenti in PVC ad alte prestazioni, tapparelle in alluminio motorizzate, porta blindata, videocitofono e predisposizione per impianto antintrusione, elementi che contribuiscono ad aumentare comfort, sicurezza e qualità della vita.

Le abitazioni sono in pronta consegna ed è possibile scegliere le finiture tramite ottimo capitolato.

Una soluzione ideale per chi è alla ricerca di una villa nuova a Seveso, con spazi ben organizzati, efficienza energetica e tutto il comfort di una casa pronta da vivere.

Contattaci per maggiori informazioni o per prenotare una visita.

Mostra tutto

Nelle vicinanze

Trasporto pubblico Trasporto pubblico
Seveso
Seveso
230 m
Cesano Maderno
Cesano Maderno
1,8 Km
Seveso - Corso Garibaldi, 68 - Linea Z163
Seveso - Corso Garibaldi, 68 - Linea Z163
450 m
Seveso - Corso Garibaldi, 7 - Linea Z163
Seveso - Corso Garibaldi, 7 - Linea Z163
480 m
Cesano Maderno
Cesano Maderno
1,6 Km
Ricariche auto elettriche Ricariche auto elettriche
Iperal Barlassina
890 m
Bricch Golf
1,4 Km
U2 Supermercato Meda | EnelX
3,0 Km
Scuole Scuole
Scuola primaria "Carlo Collodi"
310 m
Scuola secondaria di primo grado Leonardo Da Vinci e Istituto Professionale di Stato L. Milani - Sede di Seveso
370 m
Istituto Professionale di Stato Lorenzo Milani
370 m
Scuola primaria e secondaria di primo grado "Pier Giorgio Frassati"
700 m
Scuola Primaria Bruno Munari
770 m
Farmacia Farmacia
Farmacia Centrale
200 m
Farmacia San Pietro
380 m
Farmacia
840 m
Farmacia Dott.sse Varda
1,5 Km
Pozzoli
1,7 Km
Supermercati Supermercati
U2
400 m
MD Market
460 m
Crai
660 m
Iperal Barlassina
830 m
Conad
1,1 Km
Negozi Negozi
Pan Brio
190 m
Corrado Tessuti
360 m
Il Forno
500 m
Seveso Market
520 m
I piaceri del pane
530 m
Bar Bar
Caffè Manzoni
20 m
Bar Rivoli
200 m
Bar Madonna
340 m
Bar Trattoria Sole
390 m
Country Bar
450 m
Ristoranti Ristoranti
Pizzeria del Corso
110 m
Gusto Giusto
360 m
Farghin Ristorante Pizzeria
420 m
Mirò
450 m
O sole mio
450 m
Mostra tutto

Caratteristiche

Rif.:
61188534
Piano:
Su più livelli di 1
Totale piani:
1
Box:
2
Balconi:
1
Terrazzi:
1
Mostra tutto
Prezzo Prezzo
€ 398.000
Rata mutuo Rata mutuo
€ 1.889 / mese
Spese annue Spese annue
€ 0
Proponi il tuo prezzoProponi il tuo prezzo

Classe Energetica

A3
A3
A3
A3
A3
A3
A3
A3
A3
EP globale non rinnovabile:
54.20 kW h/m² anno
EP globale rinnovabile:
0.00 kW h/m² anno
EP invernale del fabbricato:
EP estiva del fabbricato:
Anno di costruzione:
2025
Riscaldamento:
Autonomo
Tipo impianto:
A pavimento
Tipo alimentazione:
Altro

Ti interessa visionare l'immobile?

Fissa un appuntamento  Fissa un appuntamento

Richiedi informazioni

Clicca su Leggi per aprire l'informativa
* Questi campi sono obbligatori

Calcola il tuo mutuo

Semplice e senza impegno
Anticipo

( % )
Mutuo

( % )

pochi semplici passi

inserisci i tuoi dati
Questionario completato
Grazie per aver richiesto un appuntamento senza impegno con un nostro Consulente del Credito e Assicurativo.

Hai inserito correttamente tutti i dati necessari e a breve riceverai una e-mail con un link da convalidare per inviare i tuoi dati.
Affiliato
Studio Ss Srl
Via Stefano da Seregno, 16 20831 Seregno (MB)

Il nostro staff


  • Antonio Santoro
    Affiliato

  • Lisa Vincenzi
    Coordinatrice

  • Mattia Alfonso La Mendola
    Responsabile

  • Domenico Perillo
    Collaboratore
Via Stefano da Seregno, 16 20831 Seregno (MB)
Zona: Seregno 1
Mostra su mappa
Orari: Lunedi a Venerdi' 09.00 - 12.30 ; 14.30 - 19.30 Sabato 09.00 - 14.00
Affiliato
Studio Ss Srl
Via Stefano da Seregno, 16 20831 Seregno (MB)

2026 Tecnocasa Franchising S.p.A. - P. IVA 08365160152 - Via Monte Bianco 60/A 20089 Rozzano (MI). Ogni agenzia ha un proprio titolare ed è autonoma. Privacy policy | Policy utilizzo | Cookie policy