Villa singola in vendita

Seregno, Via Monti
€ 595.000
4 locali 4 locali
266 Mq 266 Mq
3 bagni 3 bagni

Villa singola in vendita

Seregno, Via Monti

Descrizione annuncio

Nella tranquilla e prestigiosa Zona Cagnola, proponiamo in vendita un'elegante villa singola, completamente indipendente, immersa in un’oasi di privacy e verde.


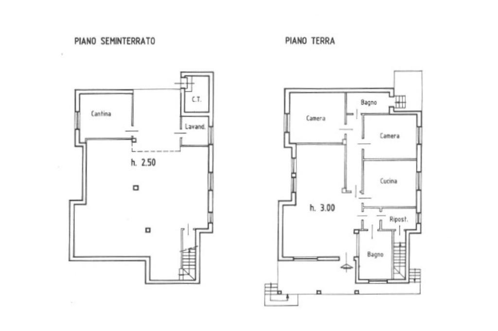
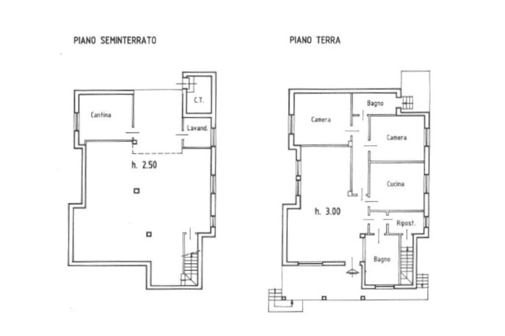
La proprietà si sviluppa su un unico livello abitativo di circa 180 mq, oltre a una spaziosa taverna finestrata di circa 170 mq, e vanta un giardino privato piantumato di 500 mq che circonda l’abitazione su tutti e quattro i lati, garantendo la massima riservatezza e indipendenza.

Un ampio e raffinato porticato di circa 25 mq anticipa l’ingresso alla villa e rappresenta lo spazio ideale per momenti di relax all’aperto, cene in compagnia o semplicemente per godersi la tranquillità del verde circostante.

L’abitazione principale è composta da un doppio soggiorno molto luminoso, con la possibilità di realizzare facilmente una terza camera da letto, cucina abitabile, due camere matrimoniali, doppi servizi finestrati e un locale lavanderia anch’esso finestrato.

La villa è stata originariamente progettata con tre camere da letto, facilmente ripristinabili per chi desiderasse una zona notte più ampia.

Al piano seminterrato, collegato internamente da una comoda scala in muratura, si trova la grande taverna con finestre, ideale come spazio multifunzionale per momenti conviviali, palestra, home cinema o studio.

È presente anche un secondo locale lavanderia e la possibilità di realizzare un box auto chiuso, attualmente lasciato a vista.

Senza spese condominiali, libera subito e con riscaldamento autonomo, questa soluzione rappresenta l’ideale per chi cerca un’abitazione indipendente, spaziosa e subito abitabile, in una delle zone più ricercate della città.

Una villa unica per chi desidera comfort, autonomia e un contesto esclusivo.

Mostra tutto

Nelle vicinanze

Trasporto pubblico Trasporto pubblico
stazione di Seregno
stazione di Seregno
1,4 Km
Z231/Z232 - SEREGNO Matteotti fr.213
Z231/Z232 - SEREGNO Matteotti fr.213
350 m
Z231/Z232 - SEREGNO Matteotti 213/Parini
Z231/Z232 - SEREGNO Matteotti 213/Parini
350 m
Ricariche auto elettriche Ricariche auto elettriche
In's Mercato
650 m
Krealpool SRL
2,7 Km
U2 Supermercato Meda | EnelX
3,0 Km
Scuole Scuole
Scuola secondaria di secondo grado paritaria "Istituto Paci"
70 m
Scuola media statale L. Don Milani
280 m
Istituto Tecnico Commerciale e per Geometri Primo Levi
440 m
Scuola Primaria Luigi Cadorna
530 m
Istituto di Istruzione Superiore Martino Bassi
590 m
Farmacia Farmacia
Farmacia
180 m
Farmacia Santagostino
790 m
Farmacia Gilardelli
870 m
Beretta Emanuele
930 m
Parafarmacia Colombo
980 m
Ospedali Ospedali
Ospedale Trabattoni e Ronzoni
660 m
policlinico di Monza
2,4 Km
Dedalo Psicologia
2,6 Km
Bianalisi s.r.l. Analisi Mediche
2,7 Km
Supermercati Supermercati
Simply
820 m
Simply Market
1,0 Km
Iperal
1,3 Km
Esselunga
1,4 Km
Supermercati U2
1,5 Km
Negozi Negozi
Corti
300 m
Dell'Orto Gianpaolo tessuti
400 m
Dell'Orto Gianpaolo
430 m
Passa che ti passa
550 m
Antico forno
660 m
Bar Bar
Pacha'
260 m
Bar 13
340 m
Torricelli 10
740 m
Davis
800 m
Kiss Kiss Cafè
820 m
Ristoranti Ristoranti
Mystic Pizza
60 m
Bier Himmel
630 m
Ristorante Mediterraneo
650 m
La bottega della pizza
700 m
Pizza&Burger Restelli
720 m
Mostra tutto

Caratteristiche

Rif.:
61157708
Piano:
1 di 1 (Piano terra con giardino)
Box:
1
Camere da letto:
2
Arredamento:
Assente
Condizionamento:
Autonomo
Mostra tutto
Prezzo Prezzo
€ 595.000
Rata mutuo Rata mutuo
€ 2.804 / mese
Spese annue Spese annue
€ 0
Proponi il tuo prezzoProponi il tuo prezzo

Classe Energetica

E
E
E
E
E
E
E
E
E
EP globale non rinnovabile:
287.04 kW h/m² anno
EP globale rinnovabile:
48.92 kW h/m² anno
EP invernale del fabbricato:
EP estiva del fabbricato:
Anno di costruzione:
1969
Riscaldamento:
Autonomo
Tipo impianto:
A radiatori
Tipo alimentazione:
Metano

Ti interessa visionare l'immobile?

Fissa un appuntamento  Fissa un appuntamento

Richiedi informazioni

Clicca su Leggi per aprire l'informativa
* Questi campi sono obbligatori

Calcola il tuo mutuo

Semplice e senza impegno
Anticipo

( % )
Mutuo

( % )

pochi semplici passi

inserisci i tuoi dati
Questionario completato
Grazie per aver richiesto un appuntamento senza impegno con un nostro Consulente del Credito e Assicurativo.

Hai inserito correttamente tutti i dati necessari e a breve riceverai una e-mail con un link da convalidare per inviare i tuoi dati.
Affiliato
Studio Ss Srl
Via Stefano da Seregno, 16 20831 Seregno (MB)

Il nostro staff


  • Antonio Santoro
    Affiliato

  • Lisa Vincenzi
    Coordinatrice

  • Mattia Alfonso La Mendola
    Responsabile

  • Domenico Perillo
    Collaboratore
Via Stefano da Seregno, 16 20831 Seregno (MB)
Zona: Seregno 1
Mostra su mappa
Orari: Lunedi a Venerdi' 09.00 - 12.30 ; 14.30 - 19.30 Sabato 09.00 - 14.00
Affiliato
Studio Ss Srl
Via Stefano da Seregno, 16 20831 Seregno (MB)

2026 Tecnocasa Franchising S.p.A. - P. IVA 08365160152 - Via Monte Bianco 60/A 20089 Rozzano (MI). Ogni agenzia ha un proprio titolare ed è autonoma. Privacy policy | Policy utilizzo | Cookie policy