Villa singola in vendita

Seregno, Via Evangelista Torricelli
€ 505.000
4 locali 4 locali
224 Mq 224 Mq
2 bagni 2 bagni

Villa singola in vendita

Seregno, Via Evangelista Torricelli

Descrizione annuncio

In una posizione centrale e strategica, a pochi passi da scuole, negozi e mezzi pubblici, lungo la comoda via San Vitale che collega rapidamente il centro e la stazione, proponiamo in vendita una casa indipendente dal grande potenziale, perfetta per chi sogna di creare un’abitazione personalizzata secondo il proprio stile e le proprie esigenze.

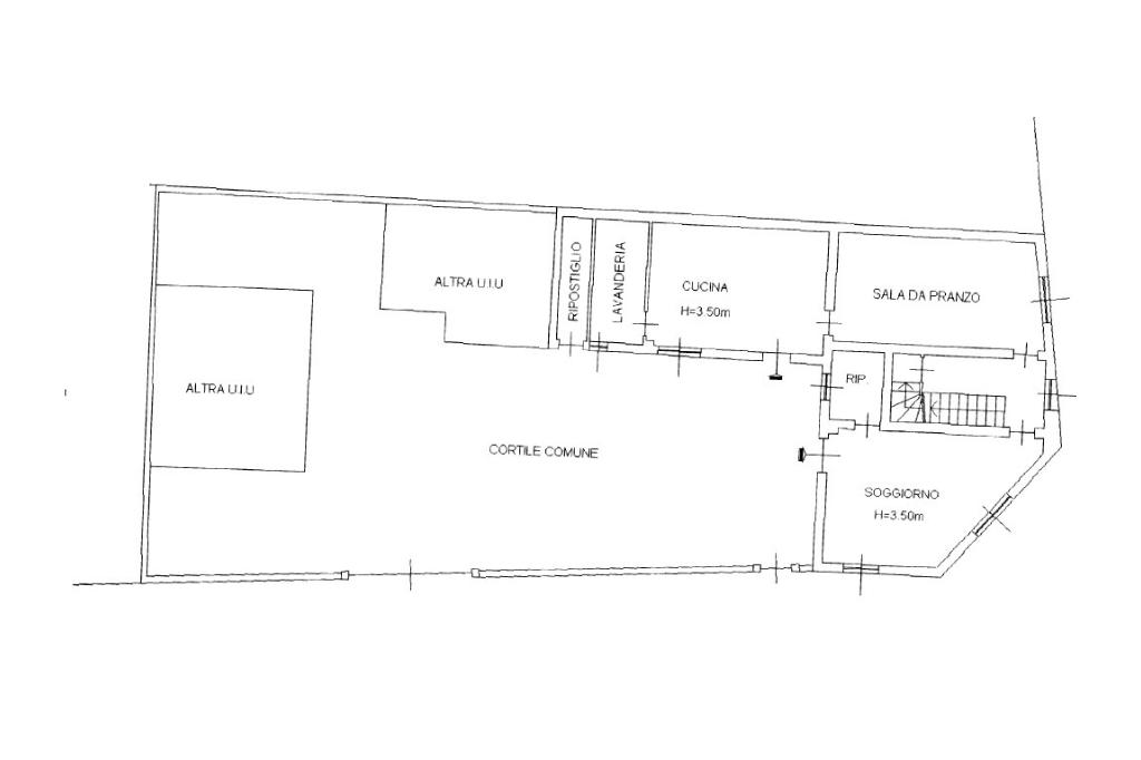
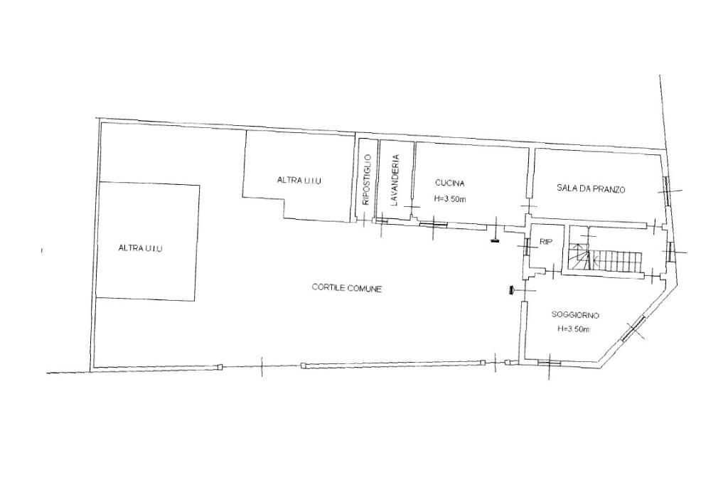
L’immobile, che si sviluppa su una superficie interna complessiva di circa 230 mq, offre ambienti ampi e luminosi distribuiti su più livelli, con spazi ideali per accogliere una famiglia e garantire il massimo comfort.

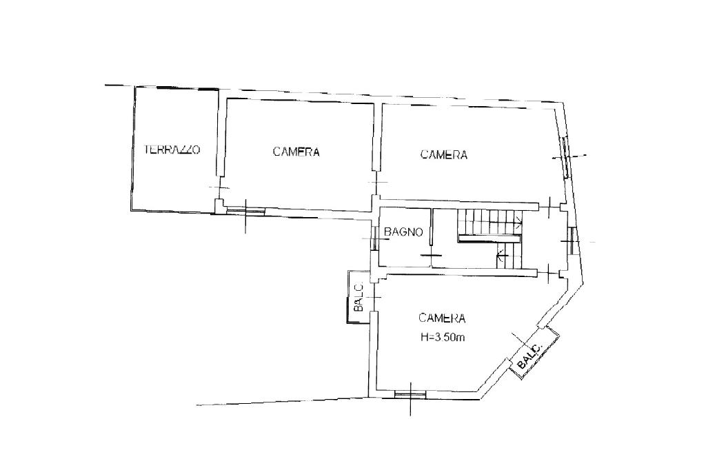
Al piano terra si trovano un soggiorno accogliente, una cucina abitabile, una sala da pranzo, un bagno/lavanderia e un pratico ripostiglio; il primo piano ospita tre camere da letto, un secondo bagno, un terrazzo e due balconi che regalano piacevoli affacci; il piano sottotetto, di pari metratura e attualmente al grezzo, rappresenta un ambiente estremamente versatile.

Grazie alla generosa metratura e ai doppi ingressi, la proprietà si presta anche alla suddivisione in due distinte soluzioni abitative, ideale per chi desidera ospitare più nuclei familiari o creare un’abitazione con studio indipendente.

A completare la proprietà vi sono due comodi box auto di 31 e 20 mq, un locale tecnico utilizzabile anche come cantina e un giardino/cortile privato di circa 350 mq, uno spazio prezioso dove godere di momenti di tranquillità all’aria aperta o dare vita a splendide aree conviviali.

Questa soluzione rappresenta una vera opportunità per chi desidera vivere in una zona centrale senza rinunciare alla privacy, con la possibilità di riqualificare e valorizzare ogni ambiente per dar vita alla casa dei propri desideri, a pochi minuti dal cuore pulsante della città.

Mostra tutto

Nelle vicinanze

Trasporto pubblico Trasporto pubblico
stazione di Seregno
stazione di Seregno
960 m
Z233 - SEREGNO Verdi 59
Z233 - SEREGNO Verdi 59
140 m
Z233 - SEREGNO Verdi fr.57-Parini
Z233 - SEREGNO Verdi fr.57-Parini
140 m
Ricariche auto elettriche Ricariche auto elettriche
In's Mercato
630 m
U2 Supermercato Meda | EnelX
2,3 Km
Krealpool SRL
2,7 Km
Scuole Scuole
Liceo Linguistico "Candia"
120 m
Istituto Comprensivo Antonio Stoppani
260 m
Collegio Ballerini
300 m
Centro di formazione
330 m
Centro di Formazione Professionale Pertini
650 m
Farmacia Farmacia
Farmacia Santagostino
280 m
Farmacia Masera
470 m
Parafarmacia Colombo
490 m
Farmacia Gilardelli
540 m
Farmacia
540 m
Ospedali Ospedali
Ospedale Trabattoni e Ronzoni
120 m
policlinico di Monza
2,8 Km
Supermercati Supermercati
Simply
390 m
Supermercati U2
800 m
Simply Market
860 m
Iperal
1,0 Km
Eurospin
1,5 Km
Negozi Negozi
Luisa Mode Abiti da Sposa e Sposo
30 m
Angelo Losa
40 m
Baby fashion
60 m
Bunatati din Romania
250 m
Shop Privee
280 m
Bar Bar
Torricelli 10
10 m
Caffè del giglio
250 m
Bar 13
400 m
Il Grappolo
410 m
Davis
450 m
Ristoranti Ristoranti
La bottega della pizza
30 m
L'Osteria dei Vitelloni
400 m
Pomiroeu
400 m
AMO - Trattoria di mare
400 m
Prezzemolo
460 m
Mostra tutto

Caratteristiche

Rif.:
61116256
Piano:
Su più livelli di 2
Totale piani:
2
Box:
2
Balconi:
2
Terrazzi:
1
Mostra tutto
Prezzo Prezzo
€ 505.000
Rata mutuo Rata mutuo
€ 2.380 / mese
Spese annue Spese annue
€ 0
Proponi il tuo prezzoProponi il tuo prezzo

Classe Energetica

G
G
G
G
G
G
G
G
G
EP globale non rinnovabile:
130.45 kW h/m² anno
EP globale rinnovabile:
1.25 kW h/m² anno
EP invernale del fabbricato:
EP estiva del fabbricato:
Anno di costruzione:
1967
Riscaldamento:
Autonomo
Tipo impianto:
A radiatori
Tipo alimentazione:
Metano

Ti interessa visionare l'immobile?

Fissa un appuntamento  Fissa un appuntamento

Richiedi informazioni

Clicca su Leggi per aprire l'informativa
* Questi campi sono obbligatori

Calcola il tuo mutuo

Semplice e senza impegno
Anticipo

( % )
Mutuo

( % )

pochi semplici passi

inserisci i tuoi dati
Questionario completato
Grazie per aver richiesto un appuntamento senza impegno con un nostro Consulente del Credito e Assicurativo.

Hai inserito correttamente tutti i dati necessari e a breve riceverai una e-mail con un link da convalidare per inviare i tuoi dati.
Affiliato
Studio Ss Srl
Via Stefano da Seregno, 16 20831 Seregno (MB)

Il nostro staff


  • Antonio Santoro
    Affiliato

  • Lisa Vincenzi
    Coordinatrice

  • Mattia Alfonso La Mendola
    Responsabile

  • Domenico Perillo
    Collaboratore
Via Stefano da Seregno, 16 20831 Seregno (MB)
Zona: Seregno 1
Mostra su mappa
Orari: Lunedi a Venerdi' 09.00 - 12.30 ; 14.30 - 19.30 Sabato 09.00 - 14.00
Affiliato
Studio Ss Srl
Via Stefano da Seregno, 16 20831 Seregno (MB)

2026 Tecnocasa Franchising S.p.A. - P. IVA 08365160152 - Via Monte Bianco 60/A 20089 Rozzano (MI). Ogni agenzia ha un proprio titolare ed è autonoma. Privacy policy | Policy utilizzo | Cookie policy