Trilocale in vendita

Seregno, Piazza caprera
€ 445.000
3 locali 3 locali
95 Mq 95 Mq
2 bagni 2 bagni

Trilocale in vendita

Seregno, Piazza caprera

Descrizione annuncio

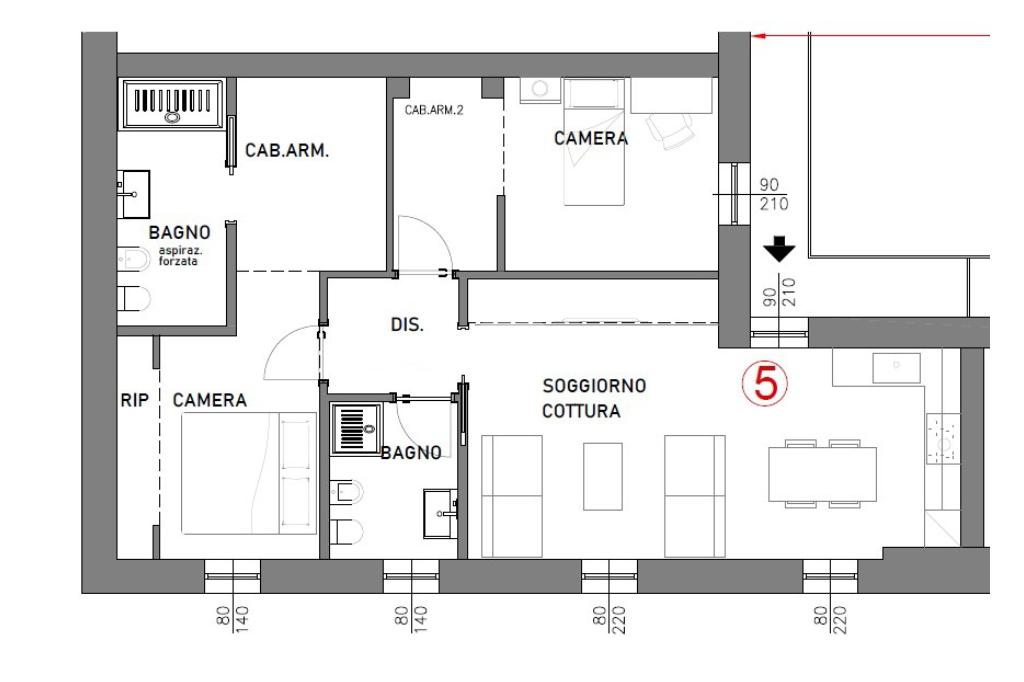
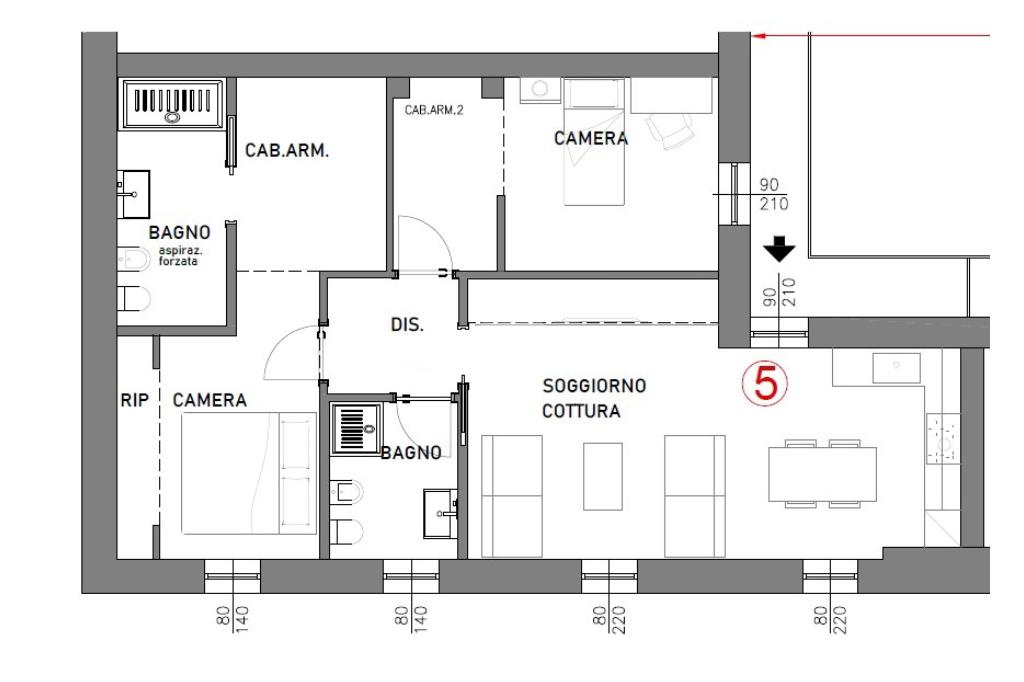
Situato nel cuore pulsante di Seregno, nell'esclusiva e ricercatissima Piazza Caprera, proponiamo una prestigiosa soluzione abitativa che incarna il perfetto equilibrio tra eleganza contemporanea e funzionalità urbana edificata nel 2025.

L'appartamento si trova al primo piano servito dall’ascensore di un contesto signorile ed estremamente curato, garantendo un'atmosfera di rappresentanza sin dall'ingresso.

La zona giorno si apre su un ampio e luminoso ambiente open space con esposizione ad ovest, dedicato al soggiorno con cucina a vista, progettato per favorire la convivialità e massimizzare la luce naturale.

La zona notte è stata studiata con una rara attenzione alla gestione degli spazi: sia la camera matrimoniale che la cameretta sono infatti servite da pratiche cabine armadio dedicate, un dettaglio di pregio che eleva il comfort quotidiano.

La proprietà dispone di doppi servizi: uno finestrato e uno di servizio riservato alla camera matrimoniale.

L'immobile è già ultimato e pronto per essere abitato immediatamente, offrendo il vantaggio della disponibilità immediata senza i tempi d'attesa del nuovo.

Un valore aggiunto fondamentale è la possibilità di personalizzare gli interni attraverso un'ampia scelta di capitolato, permettendo così di cucire le finiture sui propri gusti personali; a tal proposito, si specifica che le immagini relative alle finiture sono da intendersi a puro scopo illustrativo.

Completa questa offerta d'élite la possibilità di abbinare un box auto o di un posto auto coperto, accessori indispensabili nel centro cittadino.

Mostra tutto

Nelle vicinanze

Trasporto pubblico Trasporto pubblico
stazione di Seregno
stazione di Seregno
580 m
Via San Vitale - Via Garibaldi (Seregno)
Via San Vitale - Via Garibaldi (Seregno)
310 m
Z231/Z232 - SEREGNO Matteotti fr 75/D`Azeglio
Z231/Z232 - SEREGNO Matteotti fr 75/D`Azeglio
350 m
Ricariche auto elettriche Ricariche auto elettriche
In's Mercato
990 m
U2 Supermercato Meda | EnelX
2,3 Km
Scuole Scuole
Liceo Linguistico "Candia"
390 m
Istituto Comprensivo Antonio Stoppani
630 m
Scuola Primaria Luigi Cadorna
650 m
Collegio Ballerini
680 m
Centro di formazione
720 m
Farmacia Farmacia
Farmacia Santagostino
110 m
Parafarmacia Colombo
110 m
Farmacia Gilardelli
170 m
Farmacia Masera
250 m
Farmacia Bizzozero
310 m
Ospedali Ospedali
Ospedale Trabattoni e Ronzoni
320 m
Ospedale di Desio
2,8 Km
Supermercati Supermercati
Simply
60 m
Simply Market
510 m
Supermercati U2
1,0 Km
Eurospin
1,2 Km
Naturasì
1,4 Km
Negozi Negozi
Nadine Milano
10 m
Why Not
30 m
Cesco dei Frè
40 m
Miss Gauss
50 m
Disma & Patry
60 m
Bar Bar
Davis
130 m
Il Grappolo
150 m
Speakeasy
260 m
Torricelli 10
390 m
Doctor Jazz
430 m
Ristoranti Ristoranti
L'Osteria dei Vitelloni
30 m
Pomiroeu
70 m
Bistrot Pigalle
150 m
Trattoria Gastronomia Spotti
170 m
La Taste
190 m
Mostra tutto

Caratteristiche

Rif.:
61181467
Piano:
1 di 2 con ascensore (Piano medio)
Box:
1
Posti auto:
1
Camere da letto:
2
Arredamento:
Assente
Mostra tutto
Prezzo Prezzo
€ 445.000
Prezzo box Prezzo box
€ 40.000
Rata mutuo Rata mutuo
€ 2.123 / mese
Spese annue Spese annue
€ 1
Proponi il tuo prezzoProponi il tuo prezzo

Classe Energetica

A4
A4
A4
A4
A4
A4
A4
A4
A4
EP globale non rinnovabile:
19.55 kW h/m² anno
EP globale rinnovabile:
28.91 kW h/m² anno
EP invernale del fabbricato:
EP estiva del fabbricato:
Anno di costruzione:
2025
Riscaldamento:
Centralizzato
Tipo impianto:
A pavimento
Tipo alimentazione:
Altro

Ti interessa visionare l'immobile?

Fissa un appuntamento  Fissa un appuntamento

Richiedi informazioni

Clicca su Leggi per aprire l'informativa
* Questi campi sono obbligatori

Calcola il tuo mutuo

Semplice e senza impegno
Anticipo

( % )
Mutuo

( % )

pochi semplici passi

inserisci i tuoi dati
Questionario completato
Grazie per aver richiesto un appuntamento senza impegno con un nostro Consulente del Credito e Assicurativo.

Hai inserito correttamente tutti i dati necessari e a breve riceverai una e-mail con un link da convalidare per inviare i tuoi dati.
Affiliato
Studio Ss Srl
Via Stefano da Seregno, 16 20831 Seregno (MB)

Il nostro staff


  • Antonio Santoro
    Affiliato

  • Lisa Vincenzi
    Coordinatrice

  • Mattia Alfonso La Mendola
    Responsabile

  • Domenico Perillo
    Collaboratore
Via Stefano da Seregno, 16 20831 Seregno (MB)
Zona: Seregno 1
Mostra su mappa
Orari: Lunedi a Venerdi' 09.00 - 12.30 ; 14.30 - 19.30 Sabato 09.00 - 14.00
Affiliato
Studio Ss Srl
Via Stefano da Seregno, 16 20831 Seregno (MB)

2026 Tecnocasa Franchising S.p.A. - P. IVA 08365160152 - Via Monte Bianco 60/A 20089 Rozzano (MI). Ogni agenzia ha un proprio titolare ed è autonoma. Privacy policy | Policy utilizzo | Cookie policy