Trilocale in vendita

Seregno, Via Oriani
€ 169.000
Prezzo aggiornato
3 locali 3 locali
93 Mq 93 Mq
1 bagno 1 bagno

Trilocale in vendita

Seregno, Via Oriani

Descrizione annuncio

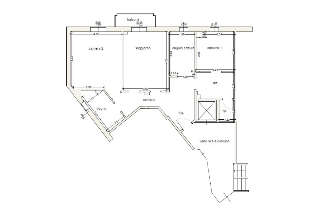
Questo spazioso trilocale si trova all'interno di una curata palazzina rivestita in klinker, situata in una posizione strategica che coniuga la comodità di una zona servitissima alla vicinanza con il centro cittadino.

Il quartiere stesso funge da vivace nucleo urbano indipendente, offrendo ogni tipo di servizio a pochi passi dal portone di casa.

L'appartamento, situato al terzo piano di un edificio di cinque piani complessivi servito da ascensore, gode di un'ottima luminosità naturale grazie alla favorevole esposizione a sud-est.

Entrando, veniamo accolti da una distribuzione classica degli spazi che vede il soggiorno e la cucina come ambienti separati; tuttavia, la disposizione dei locali permette facilmente di ripensare la pianta per creare un'unica, moderna e ariosa zona giorno open space.

Il soggiorno è inoltre valorizzato dalla presenza di un balcone e dall'impianto di aria condizionata già installato.

La zona notte è composta da una cameretta e da una camera matrimoniale dalle metrature generose.

Proprio l'ampiezza di quest'ultima, unita alla vicinanza degli scarichi del bagno principale confinante, offre l'interessante opportunità di ricavare un secondo servizio privato in camera.

La proprietà, disponibile fin da subito, è completata da una pratica cantina e il valore del box è di Euro 20.000,00, rendendola una soluzione abitativa completa e versatile.

Abbiamo scelto di liberare gli ambienti per permettervi di valutare appieno le reali dimensioni e le potenzialità degli spazi, accompagnando la visita con diverse ipotesi di realizzo e arredo per aiutarvi a visualizzare la vostra futura casa.

Mostra tutto

Nelle vicinanze

Trasporto pubblico Trasporto pubblico
stazione di Seregno
stazione di Seregno
590 m
Desio
Desio
2,5 Km
Via allo Stadio - Via Gramsci (Crocione)
Via allo Stadio - Via Gramsci (Crocione)
330 m
Servizio urbano di Seregno - Linee 1 e 3 - STAZIONE TRENITALIA
Servizio urbano di Seregno - Linee 1 e 3 - STAZIONE TRENITALIA
430 m
Ricariche auto elettriche Ricariche auto elettriche
In's Mercato
2,1 Km
U2 Supermercato Meda | EnelX
2,8 Km
Scuole Scuole
Scuola parrocchiale paritaria S. Ambrogio (scuola dell'infanzia R. G. Mariani, scuola prima e secondaria di primo grado S. Ambrogio)
470 m
Liceo Giuseppe Parini
520 m
Scuola Secondaria di Primo Grado Giuseppe Mercalli
570 m
Scuola Primaria Gianni Rodari
610 m
Scuola Primaria Luigi Cadorna
1,3 Km
Farmacia Farmacia
Comunale 1
50 m
Farmacia Bizzozero
830 m
Comunale 3
960 m
Farmacia Gilardelli
1,0 Km
Parafarmacia Colombo
1,1 Km
Ospedali Ospedali
Ospedale Trabattoni e Ronzoni
1,5 Km
Ospedale di Desio
1,7 Km
Supermercati Supermercati
Naturasì
220 m
Iperal
350 m
MD Market Seregno
390 m
Simply Market
780 m
Eurospin
840 m
Negozi Negozi
Picchiotini Mario merceria
60 m
Hangar 107
150 m
Oasi verde
210 m
SportIT
210 m
Libertà della moda
280 m
Bar Bar
Vanilla Cafè
280 m
Blu Caribe
420 m
La vipera pazza
650 m
Doctor Jazz
720 m
Bar H
850 m
Ristoranti Ristoranti
Il boccale
200 m
Country Pizzeria
720 m
Ristoranti
750 m
Euro pizza
770 m
Osteria Marinara
770 m
Mostra tutto

Caratteristiche

Rif.:
61175029
Piano:
3 di 5 con ascensore (Piano alto)
Box:
1
Balconi:
1
Camere da letto:
2
Arredamento:
Assente
Mostra tutto
Prezzo Prezzo
€ 169.000
Prezzo box Prezzo box
€ 20.000
Rata mutuo Rata mutuo
€ 806 / mese
Spese annue Spese annue
€ 1.700
Proponi il tuo prezzoProponi il tuo prezzo

Classe Energetica

F
F
F
F
F
F
F
F
F
EP globale non rinnovabile:
142.83 kW h/m² anno
EP globale rinnovabile:
0.00 kW h/m² anno
EP invernale del fabbricato:
EP estiva del fabbricato:
Anno di costruzione:
1967
Riscaldamento:
Centralizzato
Tipo impianto:
A radiatori
Tipo alimentazione:
Metano

Prezzo ridotto di €1 (6%%)

Ti interessa visionare l'immobile?

Fissa un appuntamento  Fissa un appuntamento

Richiedi informazioni

Clicca su Leggi per aprire l'informativa
* Questi campi sono obbligatori

Calcola il tuo mutuo

Semplice e senza impegno
Anticipo

( % )
Mutuo

( % )

pochi semplici passi

inserisci i tuoi dati
Questionario completato
Grazie per aver richiesto un appuntamento senza impegno con un nostro Consulente del Credito e Assicurativo.

Hai inserito correttamente tutti i dati necessari e a breve riceverai una e-mail con un link da convalidare per inviare i tuoi dati.
Affiliato
Studio Ss Srl
Via Stefano da Seregno, 16 20831 Seregno (MB)

Il nostro staff


  • Antonio Santoro
    Affiliato

  • Lisa Vincenzi
    Coordinatrice

  • Mattia Alfonso La Mendola
    Responsabile

  • Domenico Perillo
    Collaboratore
Via Stefano da Seregno, 16 20831 Seregno (MB)
Zona: Seregno 1
Mostra su mappa
Orari: Lunedi a Venerdi' 09.00 - 12.30 ; 14.30 - 19.30 Sabato 09.00 - 14.00
Affiliato
Studio Ss Srl
Via Stefano da Seregno, 16 20831 Seregno (MB)

2026 Tecnocasa Franchising S.p.A. - P. IVA 08365160152 - Via Monte Bianco 60/A 20089 Rozzano (MI). Ogni agenzia ha un proprio titolare ed è autonoma. Privacy policy | Policy utilizzo | Cookie policy