Quadrilocale in vendita

Seregno, Via Milano
€ 517.000
4 locali 4 locali
162 Mq 162 Mq
2 bagni 2 bagni

Quadrilocale in vendita

Seregno, Via Milano

Descrizione annuncio

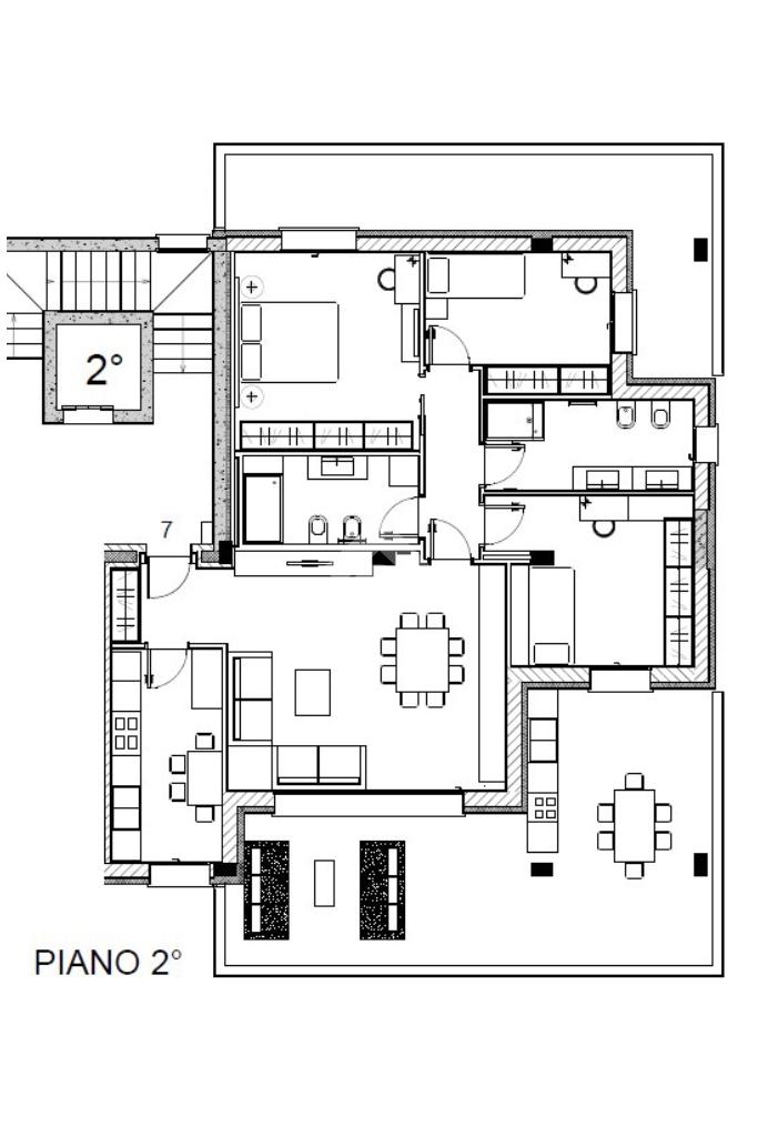
APPARTAMENTO N. 7 – RESIDENZA I PARCHI 3

Elegante quadrilocale di circa 120 mq calpestabili posto al secondo piano, caratterizzato da ambienti luminosi, ampi e funzionali.

L’abitazione si compone di una spaziosa zona giorno con cucina abitabile, disimpegno, camera matrimoniale, due camerette e doppi servizi.


Libero su tre lati, gode di esposizione est nella zona giorno, ideale per ricevere luce naturale fin dal mattino e ovest nella zona notte, perfetta per un’atmosfera calda e rilassata al tramonto.

La zona giorno e due camere accedono a due splendidi terrazzi di circa 66 mq complessivi, ideali per vivere l’esterno in ogni stagione.

L’appartamento fa parte della nuova Residenza “I Parchi 3”, in zona Stadio, comoda con tutti i principali servizi, la SS36, il centro e la stazione raggiungibile a piedi.

La palazzina, di sole 9 unità abitative, si distingue per un design moderno e raffinato e per soluzioni tecnologiche all’avanguardia.

Ogni unità è autonoma e indipendente, dotata di riscaldamento a pavimento con pompa di calore ad alta efficienza, raffrescamento canalizzato in ogni ambiente, impianto domotico, videocitofono, antintrusione e impianto fotovoltaico condominiale.


Le finiture interne e la disposizione degli ambienti possono essere personalizzate secondo le proprie esigenze, scegliendo tra le proposte di capitolato di pregio.

Le soluzioni al piano terra offrono giardini privati e ingressi indipendenti, mentre gli appartamenti ai piani superiori, come questo, si distinguono per ampie terrazze semicoperte da vivere come veri spazi outdoor. Tutte le unità vantano classe energetica A3, garanzia di efficienza, comfort e qualità costruttiva.

Disponibilità di box singoli e doppi con cantina annessa.

Consegna prevista: estate 2027.

Le immagini hanno scopo illustrativo e rappresentano esempi del futuro aspetto della palazzina e degli appartamenti.

Mostra tutto

Nelle vicinanze

Trasporto pubblico Trasporto pubblico
stazione di Seregno
stazione di Seregno
120 m
Seregno FS
Seregno FS
150 m
Trasporto pubblico
180 m
Ricariche auto elettriche Ricariche auto elettriche
In's Mercato
1,7 Km
U2 Supermercato Meda | EnelX
2,5 Km
Scuole Scuole
Scuola parrocchiale paritaria S. Ambrogio (scuola dell'infanzia R. G. Mariani, scuola prima e secondaria di primo grado S. Ambrogio)
320 m
Scuola Primaria Gianni Rodari
880 m
Liceo Giuseppe Parini
980 m
Scuola Primaria Luigi Cadorna
1,0 Km
Scuola Secondaria di Primo Grado Giuseppe Mercalli
1,0 Km
Farmacia Farmacia
Farmacia Bizzozero
410 m
Comunale 1
460 m
Parafarmacia Colombo
600 m
Farmacia Gilardelli
600 m
Farmacia Masera
700 m
Ospedali Ospedali
Ospedale Trabattoni e Ronzoni
1,0 Km
Ospedale di Desio
2,1 Km
Supermercati Supermercati
Simply Market
500 m
Eurospin
690 m
Naturasì
700 m
Simply
720 m
Iperal
760 m
Negozi Negozi
Negozi
180 m
Repubblica
240 m
Oasi verde
310 m
Cesare Gavazzi
330 m
La stockeria
330 m
Bar Bar
Doctor Jazz
290 m
Vanilla Cafè
350 m
Bar H
380 m
Speakeasy
630 m
La vipera pazza
690 m
Ristoranti Ristoranti
Ristoranti
280 m
Shanghai
340 m
Il boccale
370 m
Euro pizza
380 m
Pizzeria degli amici
400 m
Mostra tutto

Caratteristiche

Rif.:
61160806
Piano:
2 di 3 con ascensore (Piano alto)
Box:
1
Balconi:
1
Terrazzi:
1
Camere da letto:
3
Mostra tutto
Prezzo Prezzo
€ 517.000
Prezzo box Prezzo box
€ 23.000
Rata mutuo Rata mutuo
€ 2.466 / mese
Spese annue Spese annue
€ 1
Proponi il tuo prezzoProponi il tuo prezzo

Classe Energetica

A3
A3
A3
A3
A3
A3
A3
A3
A3
EP globale non rinnovabile:
56.66 kW h/m² anno
EP globale rinnovabile:
0.00 kW h/m² anno
EP invernale del fabbricato:
EP estiva del fabbricato:
Anno di costruzione:
2025
Riscaldamento:
Centralizzato
Tipo impianto:
A pavimento
Tipo alimentazione:
Metano

Ti interessa visionare l'immobile?

Fissa un appuntamento  Fissa un appuntamento

Richiedi informazioni

Clicca su Leggi per aprire l'informativa
* Questi campi sono obbligatori

Calcola il tuo mutuo

Semplice e senza impegno
Anticipo

( % )
Mutuo

( % )

pochi semplici passi

inserisci i tuoi dati
Questionario completato
Grazie per aver richiesto un appuntamento senza impegno con un nostro Consulente del Credito e Assicurativo.

Hai inserito correttamente tutti i dati necessari e a breve riceverai una e-mail con un link da convalidare per inviare i tuoi dati.
Affiliato
Studio Ss Srl
Via Stefano da Seregno, 16 20831 Seregno (MB)

Il nostro staff


  • Antonio Santoro
    Affiliato

  • Lisa Vincenzi
    Coordinatrice

  • Mattia Alfonso La Mendola
    Responsabile

  • Domenico Perillo
    Collaboratore
Via Stefano da Seregno, 16 20831 Seregno (MB)
Zona: Seregno 1
Mostra su mappa
Orari: Lunedi a Venerdi' 09.00 - 12.30 ; 14.30 - 19.30 Sabato 09.00 - 14.00
Affiliato
Studio Ss Srl
Via Stefano da Seregno, 16 20831 Seregno (MB)

2026 Tecnocasa Franchising S.p.A. - P. IVA 08365160152 - Via Monte Bianco 60/A 20089 Rozzano (MI). Ogni agenzia ha un proprio titolare ed è autonoma. Privacy policy | Policy utilizzo | Cookie policy