Trilocale in vendita

Seregno, Via Don Orione
€ 400.000
3 locali 3 locali
112 Mq 112 Mq
2 bagni 2 bagni

Trilocale in vendita

Seregno, Via Don Orione

Descrizione annuncio

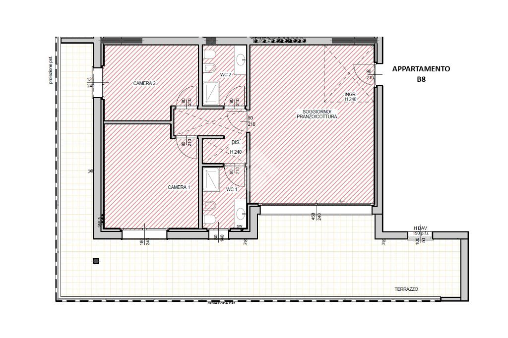
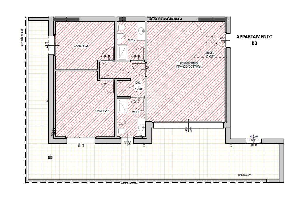
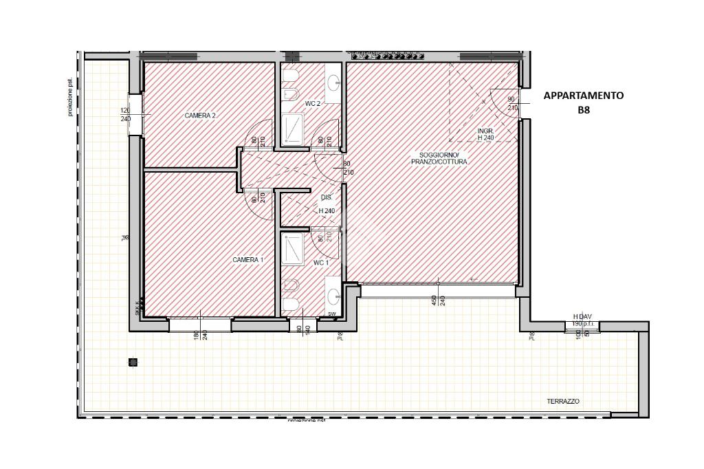
RESIDENZA IL BOSCO – APPARTAMENTO 8B

A Seregno, nella tranquilla e servita zona Don Orione, a pochi passi dalla rinomata area di Santa Valeria, dalle scuole Stoppani e non lontano dal centro città, sorge Residenza Il Bosco, un elegante complesso residenziale composto da due palazzine dal design moderno e raffinato.

Progettata con grande attenzione alla qualità costruttiva e all’efficienza energetica, la residenza propone abitazioni indipendenti dotate di impianti tecnologici di ultima generazione, con certificazione energetica in classe A4.

L’Appartamento 8B, trilocale di circa 112 mq, posto al primo piano della Scala B, con esposizione sud-est, si distingue per l’ampiezza degli spazi e la luminosità naturale che avvolge ogni ambiente.
L’ingresso conduce a un’ampia zona giorno con cucina a vista, elegante e funzionale, con affaccio su un grande terrazzo coperto, ideale per vivere appieno lo spazio esterno in ogni stagione.

La zona notte è composta da una camera matrimoniale, una cameretta e doppi servizi, progettati per offrire comfort e praticità.

L’elevato comfort abitativo è garantito dal riscaldamento a pavimento con pompa di calore, dalla predisposizione per aria condizionata e impianto d’allarme, oltre alla possibilità di personalizzare le finiture interne scegliendo tra le proposte di un capitolato di pregio, per una casa moderna, efficiente e su misura.

Il prezzo include la cantina, con possibilità di acquistare box singoli o doppi in diverse configurazioni.

Pronta consegna.

Residenza Il Bosco è la soluzione ideale per chi desidera una casa nuova, raffinata e sostenibile, inserita in una zona verde e tranquilla, ma a pochi minuti dal centro di Seregno.

Le immagini allegate sono a scopo illustrativo e si riferiscono al complesso residenziale in costruzione; pur non rappresentando l’unità specifica, sono simili e coerenti con lo stato di fatto del progetto.

Mostra tutto

Nelle vicinanze

Trasporto pubblico Trasporto pubblico
stazione di Seregno
stazione di Seregno
1,3 Km
Z233 - SEREGNO Verdi 59
Z233 - SEREGNO Verdi 59
230 m
Z233 - SEREGNO Verdi fr.57-Parini
Z233 - SEREGNO Verdi fr.57-Parini
230 m
Ricariche auto elettriche Ricariche auto elettriche
In's Mercato
380 m
U2 Supermercato Meda | EnelX
2,2 Km
Krealpool SRL
2,4 Km
Scuole Scuole
Centro di formazione
30 m
Collegio Ballerini
70 m
Istituto Comprensivo Antonio Stoppani
130 m
Centro di Formazione Professionale Pertini
290 m
Liceo Linguistico "Candia"
380 m
Farmacia Farmacia
Farmacia
630 m
Farmacia Santagostino
640 m
Farmacia Masera
770 m
Parafarmacia Colombo
840 m
Farmacia Gilardelli
900 m
Ospedali Ospedali
Ospedale Trabattoni e Ronzoni
460 m
policlinico di Monza
2,5 Km
Supermercati Supermercati
Iperal
660 m
Supermercati U2
700 m
Simply
750 m
Simply Market
1,2 Km
Eurospin
1,6 Km
Negozi Negozi
Shop Privee
240 m
Baby fashion
310 m
Angelo Losa
340 m
Luisa Mode Abiti da Sposa e Sposo
360 m
Bunatati din Romania
390 m
Bar Bar
Caffè del giglio
180 m
Torricelli 10
360 m
Bar 13
480 m
Pacha'
560 m
Il Grappolo
740 m
Ristoranti Ristoranti
AMO - Trattoria di mare
320 m
La bottega della pizza
370 m
Pomiroeu
750 m
L'Osteria dei Vitelloni
750 m
Prezzemolo
770 m
Mostra tutto

Caratteristiche

Rif.:
61160129
Piano:
2 di 3 con ascensore (Piano alto)
Box:
1
Terrazzi:
1
Camere da letto:
2
Arredamento:
Assente
Mostra tutto
Prezzo Prezzo
€ 400.000
Prezzo box Prezzo box
€ 22.000
Rata mutuo Rata mutuo
€ 1.885 / mese
Spese annue Spese annue
€ 1
Proponi il tuo prezzoProponi il tuo prezzo

Classe Energetica

A4
A4
A4
A4
A4
A4
A4
A4
A4
EP globale non rinnovabile:
19.00 kW h/m² anno
EP globale rinnovabile:
70.79 kW h/m² anno
EP invernale del fabbricato:
EP estiva del fabbricato:
Anno di costruzione:
2025
Riscaldamento:
Centralizzato
Tipo impianto:
A radiatori
Tipo alimentazione:
Altro

Ti interessa visionare l'immobile?

Fissa un appuntamento  Fissa un appuntamento

Richiedi informazioni

Clicca su Leggi per aprire l'informativa
* Questi campi sono obbligatori

Calcola il tuo mutuo

Semplice e senza impegno
Anticipo

( % )
Mutuo

( % )

pochi semplici passi

inserisci i tuoi dati
Questionario completato
Grazie per aver richiesto un appuntamento senza impegno con un nostro Consulente del Credito e Assicurativo.

Hai inserito correttamente tutti i dati necessari e a breve riceverai una e-mail con un link da convalidare per inviare i tuoi dati.
Affiliato
Studio Ss Srl
Via Stefano da Seregno, 16 20831 Seregno (MB)

Il nostro staff


  • Antonio Santoro
    Affiliato

  • Lisa Vincenzi
    Coordinatrice

  • Mattia Alfonso La Mendola
    Responsabile

  • Domenico Perillo
    Collaboratore
Via Stefano da Seregno, 16 20831 Seregno (MB)
Zona: Seregno 1
Mostra su mappa
Orari: Lunedi a Venerdi' 09.00 - 12.30 ; 14.30 - 19.30 Sabato 09.00 - 14.00
Affiliato
Studio Ss Srl
Via Stefano da Seregno, 16 20831 Seregno (MB)

2026 Tecnocasa Franchising S.p.A. - P. IVA 08365160152 - Via Monte Bianco 60/A 20089 Rozzano (MI). Ogni agenzia ha un proprio titolare ed è autonoma. Privacy policy | Policy utilizzo | Cookie policy