Trilocale in vendita

Seregno, C.so Giacomo Matteotti
€ 195.000
Prezzo aggiornato
3 locali 3 locali
105 Mq 105 Mq
1 bagno 1 bagno

Trilocale in vendita

Seregno, C.so Giacomo Matteotti

Descrizione annuncio


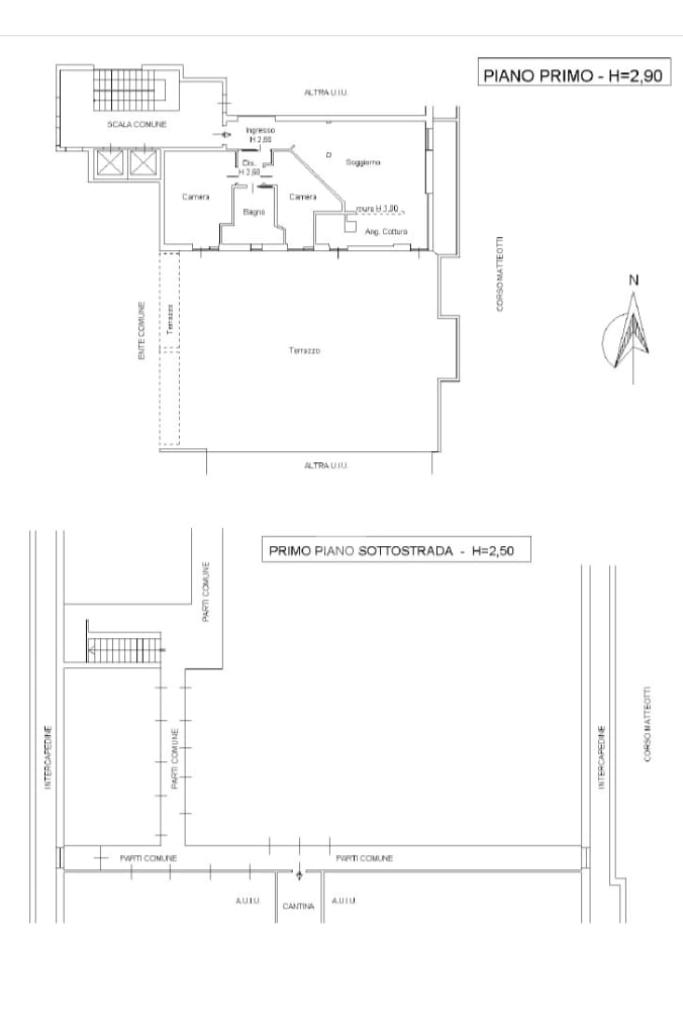
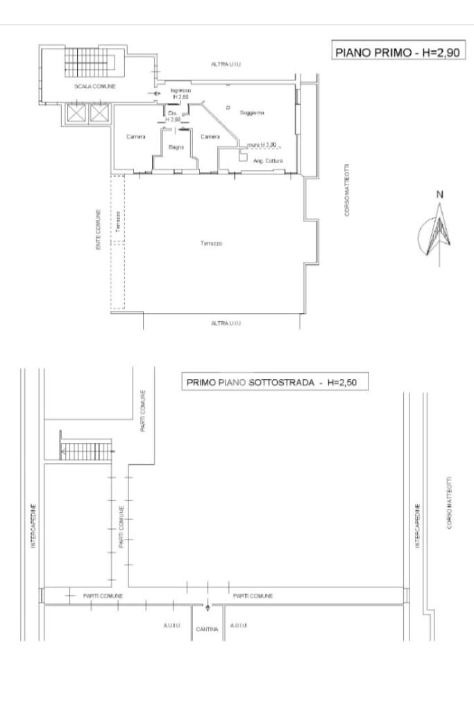
In posizione centrale e ben servita, direttamente su Corso Matteotti, proponiamo in vendita un elegante trilocale situato al primo piano di un comodo contesto condominiale dotato di ascensore.

L’appartamento conquista subito per il suo splendido TERRAZZO di circa 140 mq, un autentico spazio all’aperto dove godere momenti di relax, organizzare cene con amici o semplicemente vivere la bella stagione in totale privacy e comfort.

Il condominio, completamente riqualificato nel 2020, ha beneficiato di interventi di grande valore: facciata con cappotto termico e rifacimento totale del tetto, garantendo un buon isolamento acustico e climatico.

L’abitazione, di circa 105 mq, si presenta in ottime condizioni interne ed è composta da: luminoso soggiorno con angolo cottura e affaccio sul terrazzo, disimpegno che conduce alle due camere da letto, bagno finestrato dal design funzionale e curato.

Le spese condominiali comprendono tutto: riscaldamento, gestione condominiale, acqua e altro. L’impianto è dotato di termovalvole, quindi i costi vengono calcolati in base ai consumi effettivi e al proprio stile di utilizzo dell’abitazione.

A completare la proprietà, una cantina di pertinenza inclusa nel prezzo.

Mostra tutto

Nelle vicinanze

Trasporto pubblico Trasporto pubblico
stazione di Seregno
stazione di Seregno
480 m
Via Da Seregno - Corso Matteotti (Seregno)
Via Da Seregno - Corso Matteotti (Seregno)
60 m
Via allo Stadio - Via Bandiera (Seregno)
Via allo Stadio - Via Bandiera (Seregno)
150 m
Ricariche auto elettriche Ricariche auto elettriche
In's Mercato
1,4 Km
U2 Supermercato Meda | EnelX
2,8 Km
Scuole Scuole
Scuola Primaria Luigi Cadorna
500 m
Scuola parrocchiale paritaria S. Ambrogio (scuola dell'infanzia R. G. Mariani, scuola prima e secondaria di primo grado S. Ambrogio)
860 m
Liceo Linguistico "Candia"
940 m
Scuola secondaria di secondo grado paritaria "Istituto Paci"
970 m
Liceo Giuseppe Parini
1,1 Km
Farmacia Farmacia
Farmacia Bizzozero
350 m
Farmacia Gilardelli
380 m
Beretta Emanuele
430 m
Parafarmacia Colombo
530 m
Farmacia Santagostino
640 m
Ospedali Ospedali
Ospedale Trabattoni e Ronzoni
790 m
Ospedale di Desio
2,5 Km
Supermercati Supermercati
Simply Market
60 m
Simply
530 m
Naturasì
970 m
MD Market Seregno
1,1 Km
Iperal
1,1 Km
Negozi Negozi
Viganò
110 m
Il Corso
180 m
Daruma
290 m
Original Marines
320 m
Benetton
330 m
Bar Bar
Speakeasy
310 m
Doctor Jazz
350 m
La vipera pazza
410 m
Bar Moon
450 m
Davis
450 m
Ristoranti Ristoranti
Osteria Marinara
50 m
Pizzexport
130 m
Macellerie
160 m
Igloos
190 m
Pizza&Burger Restelli
330 m
Mostra tutto

Caratteristiche

Rif.:
61139490
Piano:
1 di 8 con ascensore (Piano medio)
Terrazzi:
1
Camere da letto:
2
Arredamento:
Assente
Condizionamento:
Assente
Mostra tutto
Prezzo Prezzo
€ 195.000
Rata mutuo Rata mutuo
€ 919 / mese
Spese annue Spese annue
€ 3.000
Proponi il tuo prezzoProponi il tuo prezzo

Classe Energetica

F
F
F
F
F
F
F
F
F
EP globale non rinnovabile:
165.80 kW h/m² anno
EP globale rinnovabile:
0.03 kW h/m² anno
EP invernale del fabbricato:
EP estiva del fabbricato:
Anno di costruzione:
1963
Riscaldamento:
Centralizzato
Tipo impianto:
A radiatori
Tipo alimentazione:
Metano

Prezzo ridotto di €1 (8%%)

Ti interessa visionare l'immobile?

Fissa un appuntamento  Fissa un appuntamento

Richiedi informazioni

Clicca su Leggi per aprire l'informativa
* Questi campi sono obbligatori

Calcola il tuo mutuo

Semplice e senza impegno
Anticipo

( % )
Mutuo

( % )

pochi semplici passi

inserisci i tuoi dati
Questionario completato
Grazie per aver richiesto un appuntamento senza impegno con un nostro Consulente del Credito e Assicurativo.

Hai inserito correttamente tutti i dati necessari e a breve riceverai una e-mail con un link da convalidare per inviare i tuoi dati.
Affiliato
Studio Ss Srl
Via Stefano da Seregno, 16 20831 Seregno (MB)

Il nostro staff


  • Antonio Santoro
    Affiliato

  • Lisa Vincenzi
    Coordinatrice

  • Mattia Alfonso La Mendola
    Responsabile

  • Domenico Perillo
    Collaboratore
Via Stefano da Seregno, 16 20831 Seregno (MB)
Zona: Seregno 1
Mostra su mappa
Orari: Lunedi a Venerdi' 09.00 - 12.30 ; 14.30 - 19.30 Sabato 09.00 - 14.00
Affiliato
Studio Ss Srl
Via Stefano da Seregno, 16 20831 Seregno (MB)

2026 Tecnocasa Franchising S.p.A. - P. IVA 08365160152 - Via Monte Bianco 60/A 20089 Rozzano (MI). Ogni agenzia ha un proprio titolare ed è autonoma. Privacy policy | Policy utilizzo | Cookie policy