Trilocale in vendita

Seregno, Via Gioberti
€ 400.000
3 locali 3 locali
112 Mq 112 Mq
2 bagni 2 bagni

Trilocale in vendita

Seregno, Via Gioberti

Descrizione annuncio

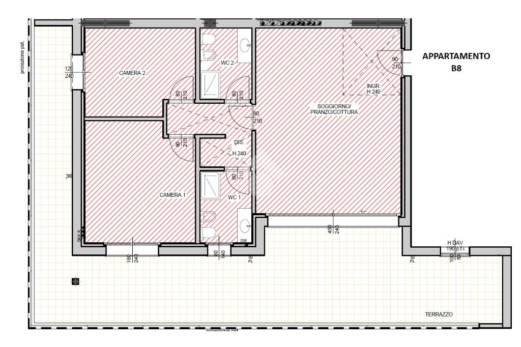
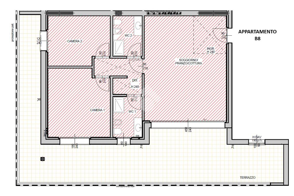
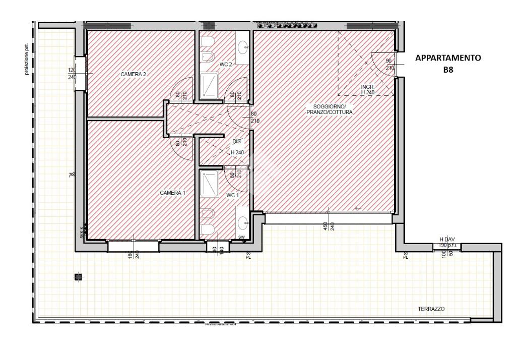
RESIDENZA IL BOSCO – APPARTAMENTO 8B

A Seregno, nella tranquilla e servita zona Don Orione, a pochi passi dalla rinomata area di Santa Valeria, dalle scuole Stoppani e non lontano dal centro città, nasce Residenza Il Bosco, un nuovo complesso residenziale di due palazzine dal design moderno e raffinato.

Progettata con grande attenzione alla qualità costruttiva e all’efficienza energetica, la residenza propone abitazioni indipendenti e dotate di impianti tecnologici di ultima generazione, con certificazione energetica in classe A4.

L’Appartamento 8B, trilocale di circa 112 mq posto al primo piano della Scala B, con esposizione sud-est, si distingue per l’ampiezza degli spazi e la luminosità naturale che avvolge ogni ambiente.

L’ingresso si apre su un’ampia zona giorno con cucina a vista, elegante e funzionale, che si affaccia su un grande terrazzo coperto, ideale per vivere appieno lo spazio esterno in ogni stagione.

La zona notte è composta da una camera matrimoniale, una cameretta e doppi servizi, concepiti per offrire comfort e praticità.

Il riscaldamento a pavimento con pompa di calore, la predisposizione per aria condizionata e impianto d’allarme e la possibilità di personalizzare le finiture interne attraverso le scelte del capitolato di pregio assicurano un’abitazione moderna, efficiente e su misura.

Il prezzo include la cantina, con possibilità di acquistare box singoli o doppi in diverse configurazioni.

La consegna è prevista per l’inizio del 2026.

Residenza Il Bosco è la scelta ideale per chi desidera una casa nuova, raffinata e sostenibile, in una zona verde e tranquilla ma a pochi minuti dal centro di Seregno.

Le immagini allegate si riferiscono a diverse soluzioni del complesso e sono da considerarsi puramente indicative e a titolo informativo.

Mostra tutto

Nelle vicinanze

Trasporto pubblico Trasporto pubblico
stazione di Seregno
stazione di Seregno
1,3 Km
Z233 - SEREGNO Verdi 59
Z233 - SEREGNO Verdi 59
220 m
Z233 - SEREGNO Verdi fr.57-Parini
Z233 - SEREGNO Verdi fr.57-Parini
230 m
Ricariche auto elettriche Ricariche auto elettriche
In's Mercato
500 m
U2 Supermercato Meda | EnelX
2,1 Km
Krealpool SRL
2,5 Km
Scuole Scuole
Istituto Comprensivo Antonio Stoppani
70 m
Collegio Ballerini
80 m
Centro di formazione
130 m
Liceo Linguistico "Candia"
310 m
Centro di Formazione Professionale Pertini
340 m
Farmacia Farmacia
Farmacia Santagostino
600 m
Farmacia Masera
690 m
Farmacia
710 m
Parafarmacia Colombo
780 m
Farmacia comunale 2
810 m
Ospedali Ospedali
Ospedale Trabattoni e Ronzoni
450 m
policlinico di Monza
2,6 Km
Supermercati Supermercati
Supermercati U2
590 m
Simply
710 m
Iperal
720 m
Simply Market
1,2 Km
Eurospin
1,6 Km
Negozi Negozi
Shop Privee
130 m
Bunatati din Romania
280 m
Baby fashion
300 m
Angelo Losa
320 m
Luisa Mode Abiti da Sposa e Sposo
340 m
Bar Bar
Caffè del giglio
90 m
Torricelli 10
320 m
Bar 13
550 m
Pacha'
630 m
Il Grappolo
670 m
Ristoranti Ristoranti
AMO - Trattoria di mare
200 m
La bottega della pizza
350 m
Prezzemolo
680 m
Pomiroeu
690 m
L'Osteria dei Vitelloni
700 m
Mostra tutto

Caratteristiche

Rif.:
61139245
Piano:
2 di 3 con ascensore (Piano alto)
Box:
1
Terrazzi:
1
Camere da letto:
2
Arredamento:
Assente
Mostra tutto
Prezzo Prezzo
€ 400.000
Prezzo box Prezzo box
€ 22.000
Rata mutuo Rata mutuo
€ 1.864 / mese
Spese annue Spese annue
€ 1
Proponi il tuo prezzoProponi il tuo prezzo

Classe Energetica

A4
A4
A4
A4
A4
A4
A4
A4
A4
EP invernale del fabbricato:
EP estiva del fabbricato:
Anno di costruzione:
2025
Riscaldamento:
Centralizzato
Tipo impianto:
A pavimento
Tipo alimentazione:
Altro

Ti interessa visionare l'immobile?

Fissa un appuntamento  Fissa un appuntamento

Richiedi informazioni

* Questi campi sono obbligatori

Calcola il tuo mutuo

Semplice e senza impegno
Anticipo

( % )
Mutuo

( % )

pochi semplici passi

inserisci i tuoi dati
Questionario completato
Grazie per aver richiesto un appuntamento senza impegno con un nostro Consulente del Credito e Assicurativo.

Hai inserito correttamente tutti i dati necessari e a breve riceverai una e-mail con un link da convalidare per inviare i tuoi dati.
Affiliato
Studio Ss Srl
Via Stefano da Seregno, 16 20831 Seregno (MB)

Il nostro staff


  • Antonio Santoro
    Affiliato

  • Lisa Vincenzi
    Coordinatrice

  • Mattia Alfonso La Mendola
    Responsabile

  • Domenico Perillo
    Collaboratore
Via Stefano da Seregno, 16 20831 Seregno (MB)
Zona: Seregno 1
Mostra su mappa
Orari: Lunedi a Venerdi' 09.00 - 12.30 ; 14.30 - 19.30 Sabato 09.00 - 14.00
Affiliato
Studio Ss Srl
Via Stefano da Seregno, 16 20831 Seregno (MB)

2025 Tecnocasa Franchising S.p.A. - P. IVA 08365160152 - Via Monte Bianco 60/A 20089 Rozzano (MI). Ogni agenzia ha un proprio titolare ed è autonoma. Privacy policy | Policy utilizzo | Cookie policy