Trilocale in vendita

Seregno, Via Milano
€ 350.000
3 locali 3 locali
113 Mq 113 Mq
2 bagni 2 bagni

Trilocale in vendita

Seregno, Via Milano

Descrizione annuncio

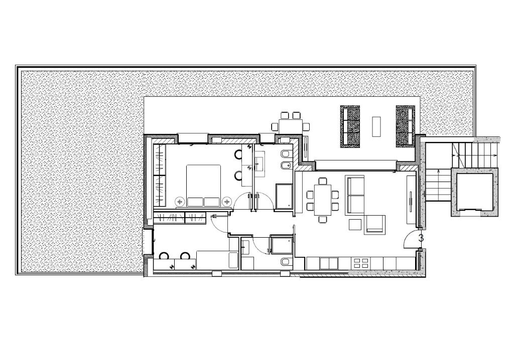
APPARTAMENTO N. 3 – RESIDENZA I PARCHI 3

Accogliente trilocale di circa 81 mq situato al piano terra, ideale per chi cerca comfort, modernità e spazi esterni da vivere tutto l’anno.

L’abitazione si compone di una luminosa zona giorno con cucina a vista, disimpegno, camera matrimoniale, cameretta e doppi servizi.


Libero su due lati, gode di un’ottima esposizione Sud-Ovest, che regala luce naturale e ambienti caldi e accoglienti per tutto il giorno.

La zona giorno e le camere si affacciano su un giardino privato di circa 71 mq, arricchito da una parte porticata di circa 43 mq, perfetta per pranzi all’aperto e momenti di relax in piena privacy.

L’appartamento fa parte della nuova Residenza “I Parchi 3”, in zona Stadio, comoda con tutti i principali servizi, la SS36, il centro e la stazione raggiungibile a piedi.

La palazzina, composta da sole 9 unità abitative, si distingue per un design moderno e raffinato e per tecnologie costruttive di ultima generazione.

Ogni unità è autonoma e indipendente, dotata di riscaldamento a pavimento con pompa di calore ad alta efficienza, raffrescamento canalizzato in ogni ambiente, impianto domotico, videocitofono, antintrusione e impianto fotovoltaico condominiale.


Le finiture interne e la disposizione degli spazi possono essere personalizzate secondo le proprie esigenze, scegliendo tra le proposte di capitolato di pregio.

Le soluzioni al piano terra, come questa, sono impreziosite da giardini privati e ingressi indipendenti, mentre quelle ai piani superiori offrono ampie terrazze semicoperte.

Tutte le abitazioni vantano classe energetica A3, sinonimo di efficienza, comfort e qualità costruttiva.

Disponibilità di box singoli e doppi con cantina annessa.


Consegna prevista: estate 2027.

Le immagini hanno scopo illustrativo e rappresentano esempi del futuro aspetto della palazzina e degli appartamenti.

Mostra tutto

Nelle vicinanze

Trasporto pubblico Trasporto pubblico
stazione di Seregno
stazione di Seregno
120 m
Seregno FS
Seregno FS
150 m
Trasporto pubblico
180 m
Ricariche auto elettriche Ricariche auto elettriche
In's Mercato
1,7 Km
U2 Supermercato Meda | EnelX
2,5 Km
Scuole Scuole
Scuola parrocchiale paritaria S. Ambrogio (scuola dell'infanzia R. G. Mariani, scuola prima e secondaria di primo grado S. Ambrogio)
320 m
Scuola Primaria Gianni Rodari
880 m
Liceo Giuseppe Parini
980 m
Scuola Primaria Luigi Cadorna
1,0 Km
Scuola Secondaria di Primo Grado Giuseppe Mercalli
1,0 Km
Farmacia Farmacia
Farmacia Bizzozero
410 m
Comunale 1
460 m
Parafarmacia Colombo
600 m
Farmacia Gilardelli
600 m
Farmacia Masera
700 m
Ospedali Ospedali
Ospedale Trabattoni e Ronzoni
1,0 Km
Ospedale di Desio
2,1 Km
Supermercati Supermercati
Simply Market
500 m
Eurospin
690 m
Naturasì
700 m
Simply
720 m
Iperal
760 m
Negozi Negozi
Negozi
180 m
Repubblica
240 m
Oasi verde
310 m
Cesare Gavazzi
330 m
La stockeria
330 m
Bar Bar
Doctor Jazz
290 m
Vanilla Cafè
350 m
Bar H
380 m
Speakeasy
630 m
La vipera pazza
690 m
Ristoranti Ristoranti
Ristoranti
280 m
Shanghai
340 m
Il boccale
370 m
Euro pizza
380 m
Pizzeria degli amici
400 m
Mostra tutto

Caratteristiche

Rif.:
61122731
Piano:
Terra con giardino di 3 con ascensore
Totale piani:
3
Box:
1
Camere da letto:
2
Arredamento:
Assente
Mostra tutto
Prezzo Prezzo
€ 350.000
Prezzo box Prezzo box
€ 23.000
Rata mutuo Rata mutuo
€ 1.631 / mese
Spese annue Spese annue
€ 1
Proponi il tuo prezzoProponi il tuo prezzo

Classe Energetica

A3
A3
A3
A3
A3
A3
A3
A3
A3
EP globale non rinnovabile:
56.66 kW h/m² anno
EP globale rinnovabile:
0.00 kW h/m² anno
EP invernale del fabbricato:
EP estiva del fabbricato:
Anno di costruzione:
2027
Riscaldamento:
Centralizzato
Tipo impianto:
A pavimento
Tipo alimentazione:
Altro

Ti interessa visionare l'immobile?

Fissa un appuntamento  Fissa un appuntamento

Richiedi informazioni

* Questi campi sono obbligatori

Calcola il tuo mutuo

Semplice e senza impegno
Anticipo

( % )
Mutuo

( % )

pochi semplici passi

inserisci i tuoi dati
Questionario completato
Grazie per aver richiesto un appuntamento senza impegno con un nostro Consulente del Credito e Assicurativo.

Hai inserito correttamente tutti i dati necessari e a breve riceverai una e-mail con un link da convalidare per inviare i tuoi dati.
Affiliato
Studio Ss Srl
Via Stefano da Seregno, 16 20831 Seregno (MB)

Il nostro staff


  • Antonio Santoro
    Affiliato

  • Lisa Vincenzi
    Coordinatrice

  • Mattia Alfonso La Mendola
    Responsabile

  • Domenico Perillo
    Collaboratore
Via Stefano da Seregno, 16 20831 Seregno (MB)
Zona: Seregno 1
Mostra su mappa
Orari: Lunedi a Venerdi' 09.00 - 12.30 ; 14.30 - 19.30 Sabato 09.00 - 14.00
Affiliato
Studio Ss Srl
Via Stefano da Seregno, 16 20831 Seregno (MB)

2025 Tecnocasa Franchising S.p.A. - P. IVA 08365160152 - Via Monte Bianco 60/A 20089 Rozzano (MI). Ogni agenzia ha un proprio titolare ed è autonoma. Privacy policy | Policy utilizzo | Cookie policy