Trilocale in vendita

Seregno, Via Milano
€ 480.000
3 locali 3 locali
155 Mq 155 Mq
2 bagni 2 bagni

Trilocale in vendita

Seregno, Via Milano

Descrizione annuncio

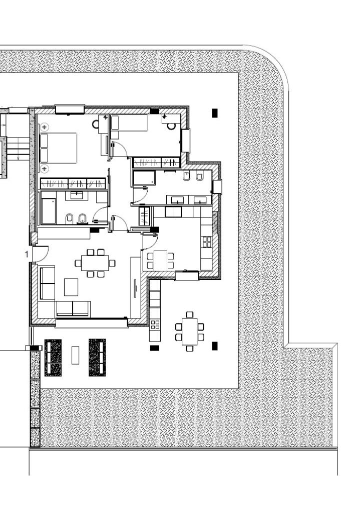
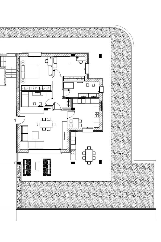
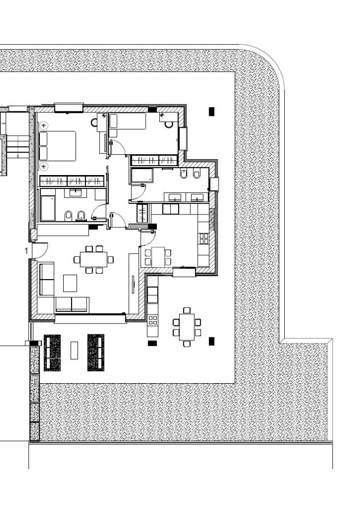
APPARTAMENTO N. 1 – RESIDENZA I PARCHI 3

Spazioso trilocale di circa 105 mq al piano terra, perfetto per chi desidera ampi spazi interni e un grande giardino privato.

L’abitazione si compone di un’ampia zona giorno con cucina separata e abitabile, camera matrimoniale, cameretta e doppi servizi.


Libero su tre lati, gode di esposizione est nella zona giorno e ovest nella zona notte, assicurando luce naturale per tutto l’arco della giornata.

All’esterno si apre un magnifico giardino di circa 127 mq, impreziosito da una zona porticata di circa 86 mq, ideale per pranzi all’aperto e momenti di relax.

L’appartamento offre inoltre la possibilità di trasformarsi in un quadrilocale, unendo la zona giorno e la cucina per creare un ampio living e ricavando la seconda cameretta nell’attuale cucina.

Inserito nella nuova Residenza “I Parchi 3”, in zona Stadio, comoda con tutti i servizi, la SS36, il centro e la stazione, l’immobile fa parte di una palazzina moderna di sole 9 unità, caratterizzata da design raffinato e tecnologie all’avanguardia.

Ogni unità è autonoma e indipendente, dotata di riscaldamento a pavimento con pompa di calore ad alta efficienza, raffrescamento canalizzato in ogni ambiente, impianto domotico, videocitofono, antintrusione e impianto fotovoltaico condominiale.


Le finiture interne e la disposizione degli spazi possono essere personalizzate secondo le proprie esigenze, scegliendo tra le soluzioni di capitolato di pregio.

Tutte le unità della Residenza vantano classe energetica A3, garanzia di comfort, efficienza e qualità costruttiva.

Disponibilità di box singoli e doppi con cantina annessa.


Consegna prevista: estate 2027.

Le immagini hanno scopo illustrativo e rappresentano esempi del futuro aspetto della palazzina e degli appartamenti.

Mostra tutto

Nelle vicinanze

Trasporto pubblico Trasporto pubblico
stazione di Seregno
stazione di Seregno
120 m
Seregno FS
Seregno FS
150 m
Trasporto pubblico
180 m
Ricariche auto elettriche Ricariche auto elettriche
In's Mercato
1,7 Km
U2 Supermercato Meda | EnelX
2,5 Km
Scuole Scuole
Scuola parrocchiale paritaria S. Ambrogio (scuola dell'infanzia R. G. Mariani, scuola prima e secondaria di primo grado S. Ambrogio)
320 m
Scuola Primaria Gianni Rodari
880 m
Liceo Giuseppe Parini
980 m
Scuola Primaria Luigi Cadorna
1,0 Km
Scuola Secondaria di Primo Grado Giuseppe Mercalli
1,0 Km
Farmacia Farmacia
Farmacia Bizzozero
410 m
Comunale 1
460 m
Parafarmacia Colombo
600 m
Farmacia Gilardelli
600 m
Farmacia Masera
700 m
Ospedali Ospedali
Ospedale Trabattoni e Ronzoni
1,0 Km
Ospedale di Desio
2,1 Km
Supermercati Supermercati
Simply Market
500 m
Eurospin
690 m
Naturasì
700 m
Simply
720 m
Iperal
760 m
Negozi Negozi
Negozi
180 m
Repubblica
240 m
Oasi verde
310 m
Cesare Gavazzi
330 m
La stockeria
330 m
Bar Bar
Doctor Jazz
290 m
Vanilla Cafè
350 m
Bar H
380 m
Speakeasy
630 m
La vipera pazza
690 m
Ristoranti Ristoranti
Ristoranti
280 m
Shanghai
340 m
Il boccale
370 m
Euro pizza
380 m
Pizzeria degli amici
400 m
Mostra tutto

Caratteristiche

Rif.:
61122717
Piano:
Terra con giardino di 3 con ascensore
Totale piani:
3
Box:
1
Camere da letto:
2
Arredamento:
Assente
Mostra tutto
Prezzo Prezzo
€ 480.000
Prezzo box Prezzo box
€ 23.000
Rata mutuo Rata mutuo
€ 2.237 / mese
Spese annue Spese annue
€ 1
Proponi il tuo prezzoProponi il tuo prezzo

Classe Energetica

A3
A3
A3
A3
A3
A3
A3
A3
A3
EP globale non rinnovabile:
57.66 kW h/m² anno
EP globale rinnovabile:
0.00 kW h/m² anno
EP invernale del fabbricato:
EP estiva del fabbricato:
Anno di costruzione:
2027
Riscaldamento:
Centralizzato
Tipo impianto:
A pavimento
Tipo alimentazione:
Altro

Ti interessa visionare l'immobile?

Fissa un appuntamento  Fissa un appuntamento

Richiedi informazioni

* Questi campi sono obbligatori

Calcola il tuo mutuo

Semplice e senza impegno
Anticipo

( % )
Mutuo

( % )

pochi semplici passi

inserisci i tuoi dati
Questionario completato
Grazie per aver richiesto un appuntamento senza impegno con un nostro Consulente del Credito e Assicurativo.

Hai inserito correttamente tutti i dati necessari e a breve riceverai una e-mail con un link da convalidare per inviare i tuoi dati.
Affiliato
Studio Ss Srl
Via Stefano da Seregno, 16 20831 Seregno (MB)

Il nostro staff


  • Antonio Santoro
    Affiliato

  • Lisa Vincenzi
    Coordinatrice

  • Mattia Alfonso La Mendola
    Responsabile

  • Domenico Perillo
    Collaboratore
Via Stefano da Seregno, 16 20831 Seregno (MB)
Zona: Seregno 1
Mostra su mappa
Orari: Lunedi a Venerdi' 09.00 - 12.30 ; 14.30 - 19.30 Sabato 09.00 - 14.00
Affiliato
Studio Ss Srl
Via Stefano da Seregno, 16 20831 Seregno (MB)

2025 Tecnocasa Franchising S.p.A. - P. IVA 08365160152 - Via Monte Bianco 60/A 20089 Rozzano (MI). Ogni agenzia ha un proprio titolare ed è autonoma. Privacy policy | Policy utilizzo | Cookie policy