Trilocale in vendita

Seregno, Viale Giuseppe Mazzini
€ 209.000
3 locali 3 locali
116 Mq 116 Mq
1 bagno 1 bagno

Trilocale in vendita

Seregno, Viale Giuseppe Mazzini

Descrizione annuncio

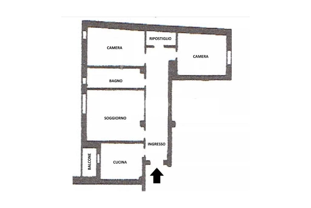
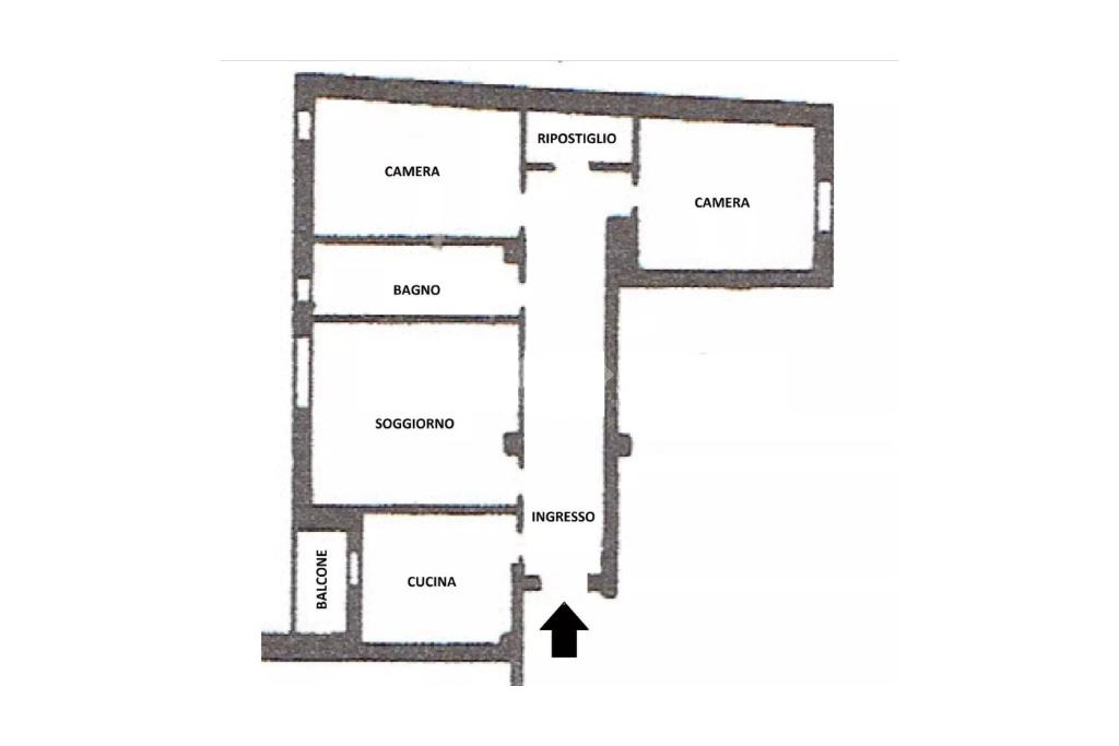
Nel cuore del centro storico di Seregno, all’interno della rinomata Galleria Mazzini, proponiamo in vendita luminoso appartamento trilocale di circa 108 mq, con destinazione d’uso abitativa, posto a un piano quinto di uno stabile civile servito da ascensore.

L’abitazione (attualmente utilizzato come ufficio) si presenta con un ingresso che accompagna a tutti gli ambienti: ampio soggiorno, cucina abitabile con uscita su balcone con splendida vista panoramica, due camere da letto, bagno e pratico ripostiglio.

La generosa metratura consente inoltre la realizzazione di un secondo bagno.

L’immobile è caratterizzato da pavimenti in legno, aria condizionata, riscaldamento centralizzato e cantina di pertinenza.

La Galleria Mazzini sarà chiusa con cancelli e riqualificata con un impianto di illuminazione a LED.

Le spese per i lavori sono già state deliberate e saranno a carico dei proprietari.

La posizione rappresenta un vero valore aggiunto: abitare in centro significa avere sotto casa negozi, servizi, scuole e locali, oltre alla comodità della stazione ferroviaria raggiungibile a piedi in pochi minuti, con collegamenti rapidi verso Milano.

A breve distanza si trovano anche il Parco XXV Aprile e il Parco di via Stefano da Seregno, ideali per il tempo libero all’aperto.

Mostra tutto

Nelle vicinanze

Trasporto pubblico Trasporto pubblico
stazione di Seregno
stazione di Seregno
180 m
Via Da Seregno - Piazza Roma (Seregno)
Via Da Seregno - Piazza Roma (Seregno)
80 m
Via Magenta (Seregno FS)
Via Magenta (Seregno FS)
90 m
Ricariche auto elettriche Ricariche auto elettriche
In's Mercato
1,4 Km
U2 Supermercato Meda | EnelX
2,5 Km
Scuole Scuole
Scuola parrocchiale paritaria S. Ambrogio (scuola dell'infanzia R. G. Mariani, scuola prima e secondaria di primo grado S. Ambrogio)
590 m
Scuola Primaria Luigi Cadorna
750 m
Liceo Linguistico "Candia"
820 m
Istituto Comprensivo Antonio Stoppani
1,1 Km
Collegio Ballerini
1,1 Km
Farmacia Farmacia
Farmacia Bizzozero
120 m
Farmacia Gilardelli
320 m
Parafarmacia Colombo
340 m
Farmacia Masera
500 m
Farmacia Santagostino
540 m
Ospedali Ospedali
Ospedale Trabattoni e Ronzoni
740 m
Ospedale di Desio
2,4 Km
Supermercati Supermercati
Simply Market
280 m
Simply
440 m
Eurospin
920 m
Naturasì
930 m
Iperal
1,0 Km
Negozi Negozi
Cesare Gavazzi
40 m
Repubblica
50 m
Original Marines
50 m
Transilvania market
60 m
La stockeria
60 m
Bar Bar
Doctor Jazz
20 m
Bar H
300 m
Speakeasy
340 m
Davis
410 m
Il Grappolo
470 m
Ristoranti Ristoranti
Ristoranti
130 m
Shanghai
280 m
Bistrot Pigalle
280 m
Pizzeria degli amici
310 m
La Taste
320 m
Mostra tutto

Caratteristiche

Rif.:
61120461
Piano:
5 di 11 con ascensore (Piano alto)
Balconi:
1
Camere da letto:
2
Arredamento:
Assente
Condizionamento:
Autonomo
Mostra tutto
Prezzo Prezzo
€ 209.000
Rata mutuo Rata mutuo
€ 974 / mese
Spese annue Spese annue
€ 2.650
Proponi il tuo prezzoProponi il tuo prezzo

Classe Energetica

G
G
G
G
G
G
G
G
G
EP globale non rinnovabile:
215.25 kW h/m² anno
EP globale rinnovabile:
320.00 kW h/m² anno
EP invernale del fabbricato:
EP estiva del fabbricato:
Anno di costruzione:
1960
Riscaldamento:
Centralizzato
Tipo impianto:
A pavimento
Tipo alimentazione:
Metano

Ti interessa visionare l'immobile?

Fissa un appuntamento  Fissa un appuntamento

Richiedi informazioni

* Questi campi sono obbligatori

Calcola il tuo mutuo

Semplice e senza impegno
Anticipo

( % )
Mutuo

( % )

pochi semplici passi

inserisci i tuoi dati
Questionario completato
Grazie per aver richiesto un appuntamento senza impegno con un nostro Consulente del Credito e Assicurativo.

Hai inserito correttamente tutti i dati necessari e a breve riceverai una e-mail con un link da convalidare per inviare i tuoi dati.
Affiliato
Studio Ss Srl
Via Stefano da Seregno, 16 20831 Seregno (MB)

Il nostro staff


  • Antonio Santoro
    Affiliato

  • Lisa Vincenzi
    Coordinatrice

  • Mattia Alfonso La Mendola
    Responsabile

  • Domenico Perillo
    Collaboratore
Via Stefano da Seregno, 16 20831 Seregno (MB)
Zona: Seregno 1
Mostra su mappa
Orari: Lunedi a Venerdi' 09.00 - 12.30 ; 14.30 - 19.30 Sabato 09.00 - 14.00
Affiliato
Studio Ss Srl
Via Stefano da Seregno, 16 20831 Seregno (MB)

2025 Tecnocasa Franchising S.p.A. - P. IVA 08365160152 - Via Monte Bianco 60/A 20089 Rozzano (MI). Ogni agenzia ha un proprio titolare ed è autonoma. Privacy policy | Policy utilizzo | Cookie policy