Quadrilocale in vendita

Seregno, Via S. Vitale
€ 446.000
4 locali 4 locali
140 Mq 140 Mq
2 bagni 2 bagni

Quadrilocale in vendita

Seregno, Via S. Vitale

Descrizione annuncio

In una delle zone più prestigiose di Seregno, all’incrocio tra via San Vitale e via Copernico, sta nascendo una residenza moderna e sostenibile, pensata per offrire benessere abitativo e il massimo dell’efficienza energetica.

Il complesso ospiterà soltanto 3 unità familiari, garantendo privacy, tranquillità e basse spese di gestione condominiale.

La palazzina sarà inoltre dotata di ascensore, a servizio di tutti i livelli.

Gli appartamenti saranno realizzati con le più avanzate tecnologie volte al risparmio energetico e alla riduzione dell’impatto ambientale.

Saranno infatti dotati di riscaldamento autonomo a pavimento alimentato da sistema geotermico con pompe di calore, supportato da impianto fotovoltaico.

La ventilazione meccanica controllata garantirà un costante ricambio d’aria, mantenendo il clima interno salubre senza dispersioni termiche.

Non mancheranno predisposizioni per aria condizionata e impianto d’allarme, a completamento della dotazione tecnologica.

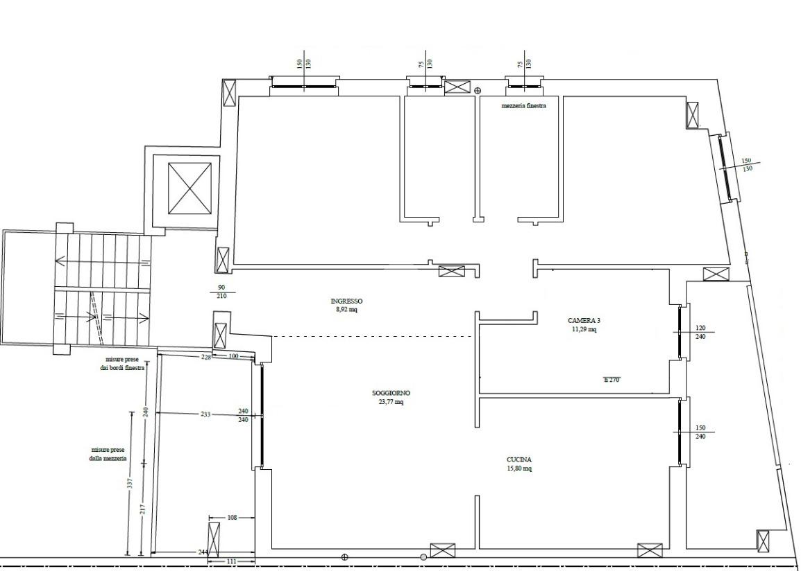
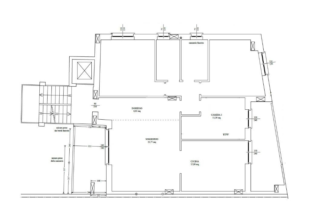
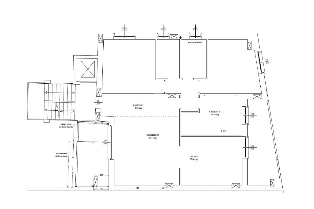
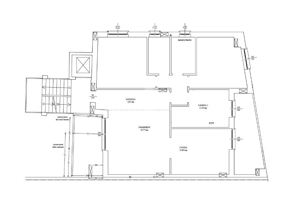
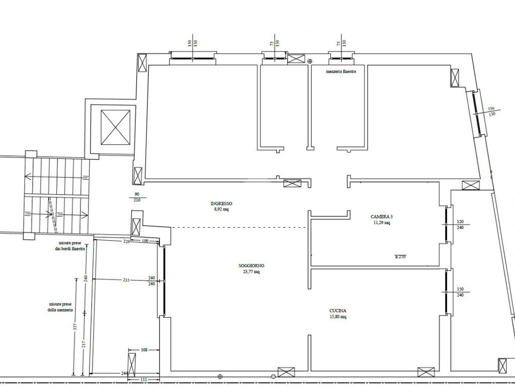
Il quadrilocale in proposta, situato al piano rialzato di due, si sviluppa su circa 160 mq commerciali e presenta una spaziosa zona giorno di circa 40 mq con accesso a due terrazzi vivibili, ideali per ampliare gli spazi conviviali.

La zona notte comprende una camera matrimoniale, due camerette, doppi servizi entrambi finestrati e un pratico ripostiglio.

Le finiture saranno personalizzabili attraverso un ricco capitolato, con possibilità di scegliere pavimentazioni di pregio e soluzioni di design per i bagni.

La classe energetica A4 certifica la massima efficienza e un sensibile risparmio sui costi di gestione.

La residenza si distingue anche per l’attenzione agli spazi esterni e comuni: terrazzi e balconi ampi, aree verdi curate e soluzioni che favoriscono sicurezza e privacy, grazie a serramenti performanti, portoncini blindati e videocitofono.

Possibilità di una comoda cantina e due posti auto coperti, ideali per soddisfare ogni esigenza di praticità e sicurezza.

Consegna prevista: gennaio 2026.

Un progetto innovativo che coniuga comfort, estetica e rispetto per l’ambiente, offrendo la possibilità di vivere il futuro dell’abitare green nel cuore di Seregno.

Mostra tutto

Nelle vicinanze

Trasporto pubblico Trasporto pubblico
stazione di Seregno
stazione di Seregno
620 m
Via San Vitale - Via Garibaldi (Seregno)
Via San Vitale - Via Garibaldi (Seregno)
10 m
Via Magenta (Seregno FS)
Via Magenta (Seregno FS)
480 m
Ricariche auto elettriche Ricariche auto elettriche
In's Mercato
1,1 Km
U2 Supermercato Meda | EnelX
2,0 Km
Scuole Scuole
Liceo Linguistico "Candia"
420 m
Istituto Comprensivo Antonio Stoppani
650 m
Collegio Ballerini
720 m
Centro di formazione
770 m
Scuola parrocchiale paritaria S. Ambrogio (scuola dell'infanzia R. G. Mariani, scuola prima e secondaria di primo grado S. Ambrogio)
900 m
Farmacia Farmacia
Farmacia Masera
90 m
Parafarmacia Colombo
300 m
Farmacia Santagostino
370 m
Farmacia comunale 2
430 m
Farmacia Gilardelli
470 m
Ospedali Ospedali
Ospedale Trabattoni e Ronzoni
510 m
Ospedale di Desio
2,8 Km
Supermercati Supermercati
Simply
400 m
Simply Market
760 m
Supermercati U2
780 m
Eurospin
1,0 Km
Iperal
1,4 Km
Negozi Negozi
OVS
100 m
Tendenze
110 m
Corti
120 m
Camiceria Marconi
210 m
Boutique Peppe Ross
210 m
Bar Bar
Il Grappolo
180 m
Bar Zac
210 m
Bar H
360 m
Bar Toc
440 m
Davis
460 m
Ristoranti Ristoranti
Prezzemolo
70 m
Trattoria Gastronomia Spotti
250 m
La Taste
260 m
Pomiroeu
270 m
L'Osteria dei Vitelloni
300 m
Mostra tutto

Caratteristiche

Rif.:
61106129
Piano:
Rialzato di 2 con ascensore
Totale piani:
2
Posti auto:
2
Balconi:
1
Terrazzi:
1
Mostra tutto
Prezzo Prezzo
€ 446.000
Rata mutuo Rata mutuo
€ 2.127 / mese
Spese annue Spese annue
€ 1
Proponi il tuo prezzoProponi il tuo prezzo

Classe Energetica

A4
A4
A4
A4
A4
A4
A4
A4
A4
EP invernale del fabbricato:
EP estiva del fabbricato:
Anno di costruzione:
2025
Riscaldamento:
Autonomo
Tipo impianto:
A pavimento
Tipo alimentazione:
Altro

Ti interessa visionare l'immobile?

Fissa un appuntamento  Fissa un appuntamento

Richiedi informazioni

Clicca su Leggi per aprire l'informativa
* Questi campi sono obbligatori

Calcola il tuo mutuo

Semplice e senza impegno
Anticipo

( % )
Mutuo

( % )

pochi semplici passi

inserisci i tuoi dati
Questionario completato
Grazie per aver richiesto un appuntamento senza impegno con un nostro Consulente del Credito e Assicurativo.

Hai inserito correttamente tutti i dati necessari e a breve riceverai una e-mail con un link da convalidare per inviare i tuoi dati.
Affiliato
Studio Ss Srl
Via Stefano da Seregno, 16 20831 Seregno (MB)

Il nostro staff


  • Antonio Santoro
    Affiliato

  • Lisa Vincenzi
    Coordinatrice

  • Mattia Alfonso La Mendola
    Responsabile

  • Domenico Perillo
    Collaboratore
Via Stefano da Seregno, 16 20831 Seregno (MB)
Zona: Seregno 1
Mostra su mappa
Orari: Lunedi a Venerdi' 09.00 - 12.30 ; 14.30 - 19.30 Sabato 09.00 - 14.00
Affiliato
Studio Ss Srl
Via Stefano da Seregno, 16 20831 Seregno (MB)

2026 Tecnocasa Franchising S.p.A. - P. IVA 08365160152 - Via Monte Bianco 60/A 20089 Rozzano (MI). Ogni agenzia ha un proprio titolare ed è autonoma. Privacy policy | Policy utilizzo | Cookie policy